INVESTISSEMENT LOCATIF CHARTRES Résidence Affaires Cap West Chartres - 8,69 de rentabilité
Publié le 20 February 2023
Type
Bien immobilierTarif
69 000 €Chambres
1Salles de bain
0INVESTISSEMENT LOCATIF CHARTRES Résidence Affaires Cap West Chartres - 8,69 de rentabilité
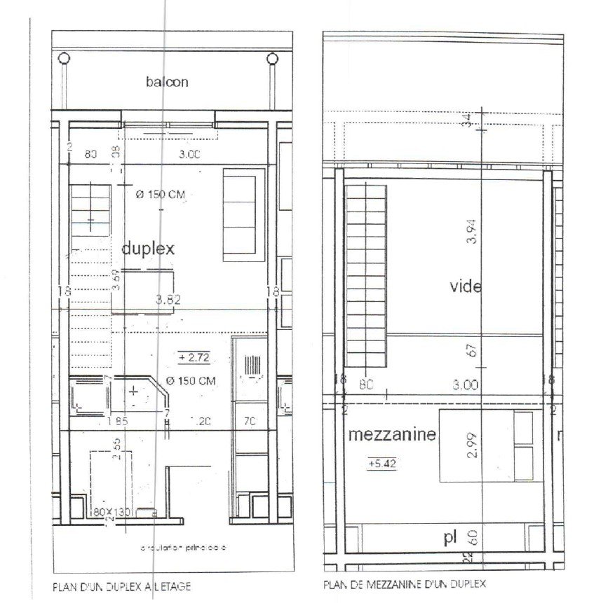
Réalisez un investissement locatif sécurisé en résidence de services sans souci de gestion : le produit idéal pour vous constituer un patrimoine immobilier tout en bénéficiant d'une rentabilité sécurisée par des loyers stables, dès l'acquisition. Loyer annuel HT : 5 998.16 Rentabilité : 8,69 Gestionnaire : Cap West Vous bénéficiez du statut fiscal LMNP amortissable, permettant une exonération d'impôt sur vos revenus locatifs. Le bien est exploité par un gestionnaire professionnel (Cap West), engagé par un bail commercial, vous assurant le versement des loyers dès l'acquisition, que le logement soit loué ou non. Description du bien : Cet appartement T2 en duplex situé au rez-de-chaussée offre une disposition fonctionnelle et optimisée : une entrée avec coin cuisine, une salle d'eau avec wc, un séjour et une mezzanine. Parking. À propos de la résidence : La résidence Cap West Chartres est une résidence d'Affaires idéalement située à Chartres, à proximité de la zone d'activités du Parc d'Archevilliers, des commerces et des grands axes routiers, à quelques minutes du centre-ville et de la gare. Sa localisation à proximité immédiate de l'autoroute A11 et à environ 1 heure de Paris renforce son attractivité L'établissement propose un ensemble de services : accueil, parking sécurisé, vidéosurveillance, laverie, salle de sport, accès internet haut débit et espaces communs, au sein d'une copropriété composée de nombreux logements meublés et équipés. A propos du gestionnaire occupant : Cap West est un exploitant spécialisé dans les résidences affaires, présent sur l'ensemble du territoire français, reconnu pour son expertise en gestion locative et la qualité de son accompagnement investisseurs. Le coin du LMNP - Grégoire Déporte agent basé à NEUILLY SUR SEINE - 01 84 78 46 50 - Plus d'informations sur info@lecoindulmnp.fr réf. 26117 Bien soumis au statut juridique de la Copropriété. Charges annuelles de copropriété (Montant moyen annuel quote-part du budget prévisionnel vendeur) : 1 152,96 . Pas de procédure en cours. Honoraires à la charge du vendeur
À proximité
Recherche des commodités à proximité...
Détails de l'annonce
Localisation
Ville
CHARTRES
Pays
France
Surfaces / Pièces / Composition
Surface du terrain
m²
Chauffage / Énergie
Nature de chauffage
Non renseigné
Chauffage et diagnostics
Diagnostic de performance énergétique (DPE)
a
b
c
d
e
f
g
Indice d'émission de gaz à effet de serre (GES)
a
b
c
d
e
f
g
