Type
Bien immobilierTarif
569 000 €Chambres
10Salles de bain
0Vente Demeure 14 pièces
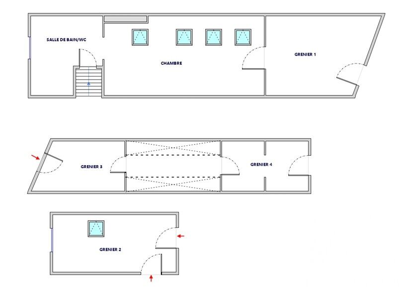
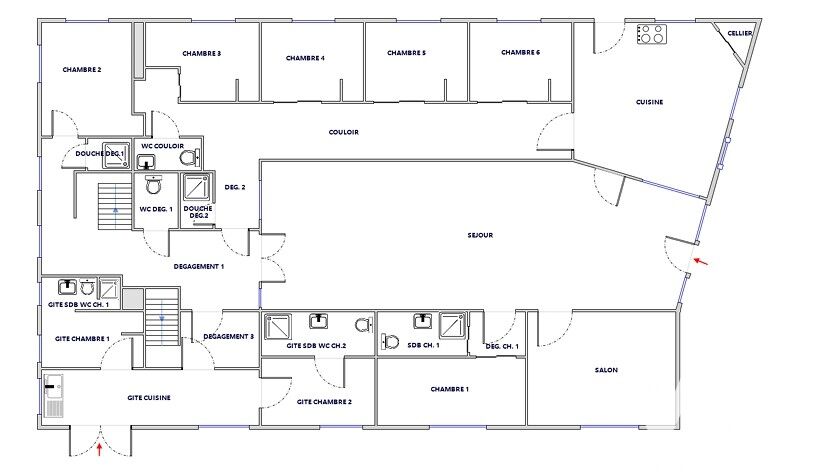
Iad France - Valérie PALUD vous propose : Sublime Demeure de Prestige à Saint-Rémy-de-Maurienne - 10 Chambres - Piscine - Terrasse - Parc - Parking Proche de la base de loisirs Le lac bleu, stations de skis à 25 min, cols mythiques du tour de France, randonnées, autoroute à 5 minutes, gare à 10 minutes. La surface est de 448 m² habitable sur un terrain de 4029 m² Cette demeure est actuellement divisée en deux parties * Première partie : Un grand séjour de 98 m² Une cuisine de 49 m² 7 chambres de 22,17, 13,16, 18,18, 17 m² environ, 3 salles de douches, 3 wc Un dortoir de 58 m² au sol avec salle de bain et wc Une buanderie * Seconde partie : Un gîte avec entrée indépendante composé de : Un séjour de 25 m² Deux chambres de 17 et 13 m² environ avec mezzanine et une salle de bain pour chaque 2 WC * Deux ateliers aménageables (entrée indépendante) et combles aménageables (entrée indépendante). * Une ancienne écurie * Un grand parking Chauffage individuel avec distribution par plancher chauffant, d'une ventilation mécanique, ainsi que d'une alimentation en chaleur par le bois et l'énergie solaire pour une empreinte écologique réduite. Il est possible dans cette demeure de diviser la grande partie existante en plusieurs logements avec entrée déjà existantes. Honoraires d'agence à la charge du vendeur. Information d'affichage énergétique sur ce bien : classe ENERGIE D indice 201 et classe CLIMAT A indice 4. Les informations sur les risques auxquels ce bien est exposé, y compris l'obligation légale de débroussaillement, sont disponibles sur le site Géorisques : http://www.georisques.gouv.fr. La présente annonce immobilière a été rédigée sous la responsabilité éditoriale de Mme Valérie PALUD mandataire indépendant en immobilier (sans détention de fonds), agent commercial de la SAS I@D France immatriculé au RSAC de Chambéry sous le numéro 515349652, titulaire de la carte de démarchage immobilier pour le compte de la société I@D France SAS.
À proximité
Recherche des commodités à proximité...
Détails de l'annonce
Localisation
Ville
Saint-Rémy-de-Maurienne
Pays
FR
Diagnostics / Énergie
Diagnostic DPE
201
Diagnostic GES
4
Surfaces / Pièces / Composition
Nombre d’étages
3
Chauffage et diagnostics
Diagnostic de performance énergétique (DPE)
a
b
c
d
e
f
g
Indice d'émission de gaz à effet de serre (GES)
a
b
c
d
e
f
g
