Trouver...

Language: FR

Devise: EUR

Vente Appartement 4 pièces

Publié le 17 December 2025
Type
Bien immobilier
Tarif
108 000 €
Chambres
3
Salles de bain
0

Vente Appartement 4 pièces

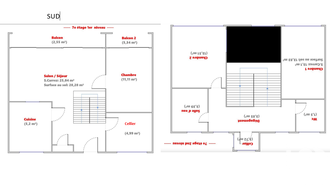
Iad France - Amandine Debez vous propose : Appartement T4 avec Vue Imprenable, Balcons et Garage à Tarbes. Découvrez ce magnifique duplex de type T4 situé au 7ème étage d'un immeuble de standing en centre ville. Offrant une vue sur la ville et les montagnes environnantes, cet appartement saura vous séduire par ses prestations de qualité et son emplacement privilégié. Dès l'entrée, vous serez charmé par la luminosité et l'espace. Il se compose d'un grand séjour, de trois belles chambres, d'une salle d'eau, d'un WC séparé et d'une cuisine équipée semi-ouverte. Les deux balcons offrent un espace extérieur agréable où vous pourrez profiter du soleil et prendre un café en toute tranquillité. Ce diamant brut ne demande qu’une simple mise au goût pour redevenir un vrai bijou. Actuellement agencé avec trois chambres, il peut très facilement redevenir un grand T3 pour agrandir encore la pièce de vie. À prévoir : une mise aux normes de l’électricité dont le prix tient compte. Les + : beaucoup de rangement, résidence sécurisée, cave et garage. Bien rare, secteur recherché, appelez moi vite ! La presente annonce immobiliere vise 3 lots situés dans une copropriété de 150 lots au total et ne faisant l'objet d'aucune procédure en cours citée à l'article L. 721-1 du code de la construction et de l'habitation. Montant moyen mensuel de charges déclaré par le vendeur : 120€ par mois (soit 1440 € annuel). Honoraires d'agence à la charge du vendeur. Information d'affichage énergétique sur ce bien : classe ENERGIE D indice 169 et classe CLIMAT D indice 35. Les informations sur les risques auxquels ce bien est exposé, y compris l'obligation légale de débroussaillement, sont disponibles sur le site Géorisques : http://www.georisques.gouv.fr. La présente annonce immobilière a été rédigée sous la responsabilité éditoriale de Mme Amandine Debez mandataire indépendant en immobilier (sans détention de fonds), agent commercial de la SAS I@D France immatriculé au RSAC de TARBES sous le numéro 850879107, titulaire de la carte de démarchage immobilier pour le compte de la société I@D France SAS.

À proximité

Recherche des commodités à proximité...

Détails de l'annonce

Localisation

Ville
Tarbes
Pays
FR

Diagnostics / Énergie

Diagnostic DPE
169
Diagnostic GES
35

Surfaces / Pièces / Composition

Nombre d’étages
8
Étage
7

Chauffage et diagnostics

Diagnostic de performance énergétique (DPE)
a
b
c
d
e
f
g
Indice d'émission de gaz à effet de serre (GES)
a
b
c
d
e
f
g
Rappelez-moi