Trouver...

Language: FR

Devise: EUR

Vente Appartement 4 pièces

Publié le 11 February 2026
Type
Bien immobilier
Tarif
126 000 €
Chambres
3
Salles de bain
0

Vente Appartement 4 pièces

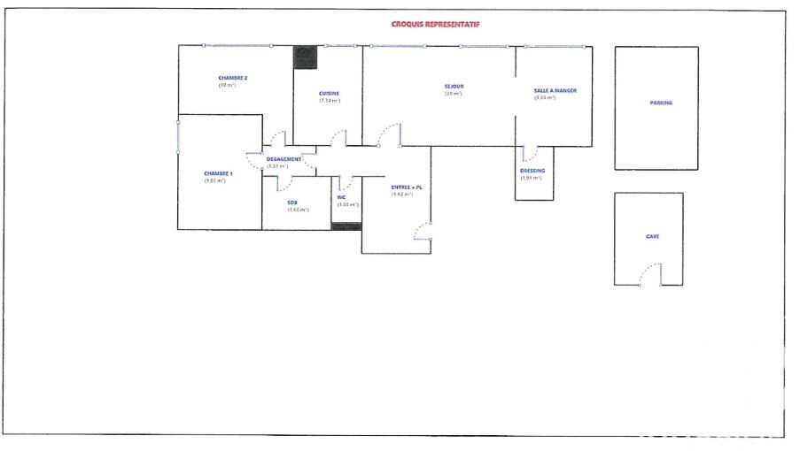
Iad France - Dylan Lagareiro vous propose : Appartement Lumineux de 4 pièces à Montmagny - Idéal pour une Famille Cet appartement de 73.52 m² offre un cadre de vie confortable et pratique pour une famille. Idéalement situé au 3ème étage, cet appartement offre une belle luminosité et une vue dégagée. La disposition intérieure de l'appartement est optimale pour le quotidien. Vous profiterez de 3 chambres spacieuses, idéales pour accueillir toute la famille, ainsi que d'une salle de bain fonctionnelle. La cuisine, bien agencée, est un espace convivial où préparer de délicieux repas en famille. Le séjour lumineux de 20 m² offre un espace de vie détente et chaleureux. Cet appartement est en bon état général, ce qui vous permet d'emménager facilement sans travaux à prévoir. De plus, la présence d'une place de parking vous garantit un confort supplémentaire pour stationner en toute sérénité. Cette opportunité est idéale pour les familles à la recherche d'un logement fonctionnel et confortable à Montmagny. Ne manquez pas l'occasion de visiter cet appartement lumineux et accueillant. Contactez-nous dès aujourd'hui pour organiser une visite. La presente annonce immobiliere vise 3 lots situés dans une copropriété de 422 lots au total et ne faisant l'objet d'aucune procédure en cours citée à l'article L. 721-1 du code de la construction et de l'habitation. Montant moyen mensuel de charges déclaré par le vendeur : 333.33€ par mois (soit 3999.96 € annuel). Honoraires d'agence à la charge du vendeur. Information d'affichage énergétique sur ce bien : classe ENERGIE E indice 234 et classe CLIMAT E indice 51. Les informations sur les risques auxquels ce bien est exposé, y compris l'obligation légale de débroussaillement, sont disponibles sur le site Géorisques : http://www.georisques.gouv.fr. La présente annonce immobilière a été rédigée sous la responsabilité éditoriale de M Dylan Lagareiro mandataire indépendant en immobilier (sans détention de fonds), agent commercial de la SAS I@D France immatriculé au RSAC de PARIS sous le numéro 912866324, titulaire de la carte de démarchage immobilier pour le compte de la société I@D France SAS.

À proximité

Recherche des commodités à proximité...

Détails de l'annonce

Localisation

Ville
Montmagny
Pays
FR

Diagnostics / Énergie

Diagnostic DPE
234
Diagnostic GES
51

Surfaces / Pièces / Composition

Nombre d’étages
9
Étage
3

Chauffage et diagnostics

Diagnostic de performance énergétique (DPE)
a
b
c
d
e
f
g
Indice d'émission de gaz à effet de serre (GES)
a
b
c
d
e
f
g
Rappelez-moi