Type
Bien immobilierTarif
295 000 €Chambres
2Salles de bain
0Vente Maison/villa 3 pièces
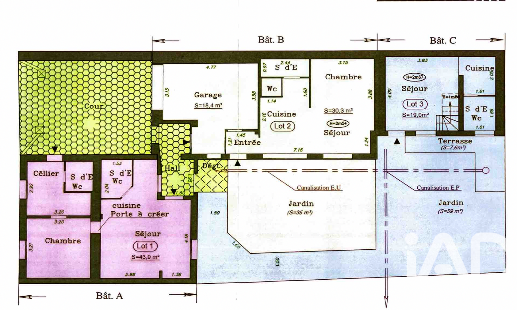
Iad France - Ariost Mekshi vous propose : Maison de plain-pied avec jardin au calme, à 600 m du centre et 800m de la gare Située dans un quartier résidentiel paisible, cette charmante maison de plain-pied bénéficie d’un emplacement idéal, tout en offrant un cadre de vie calme et verdoyant. Elle se compose d’un lumineux séjour, de deux chambres, de deux salles de douche, de deux WC, d’une cuisine aménagée, d’une kitchenette ainsi que d’un joli jardin exposé plein sud, parfait pour profiter des beaux jours. Actuellement divisée en deux logements indépendants, la maison peut facilement être réunie pour créer une seule et vaste habitation selon vos besoins. Véritable compromis entre tranquillité et proximité de la plage, cette maison est une opportunité rare sur le secteur. À visiter sans tarder ! Honoraires d'agence à la charge du vendeur. Bien non soumis au DPE. Les informations sur les risques auxquels ce bien est exposé, y compris l'obligation légale de débroussaillement, sont disponibles sur le site Géorisques : http://www.georisques.gouv.fr. La présente annonce immobilière a été rédigée sous la responsabilité éditoriale de M Ariost Mekshi mandataire indépendant en immobilier (sans détention de fonds), agent commercial de la SAS I@D France immatriculé au RSAC de LISIEUX sous le numéro 750181521, titulaire de la carte de démarchage immobilier pour le compte de la société I@D France SAS.
À proximité
Recherche des commodités à proximité...
Détails de l'annonce
Localisation
Ville
Trouville-sur-Mer
Pays
FR
Chauffage et diagnostics
Diagnostic de performance énergétique (DPE)
a
b
c
d
e
f
g
Indice d'émission de gaz à effet de serre (GES)
a
b
c
d
e
f
g
