Type
Bien immobilierTarif
249 000 €Chambres
1Salles de bain
0Vente Appartement 2 pièces
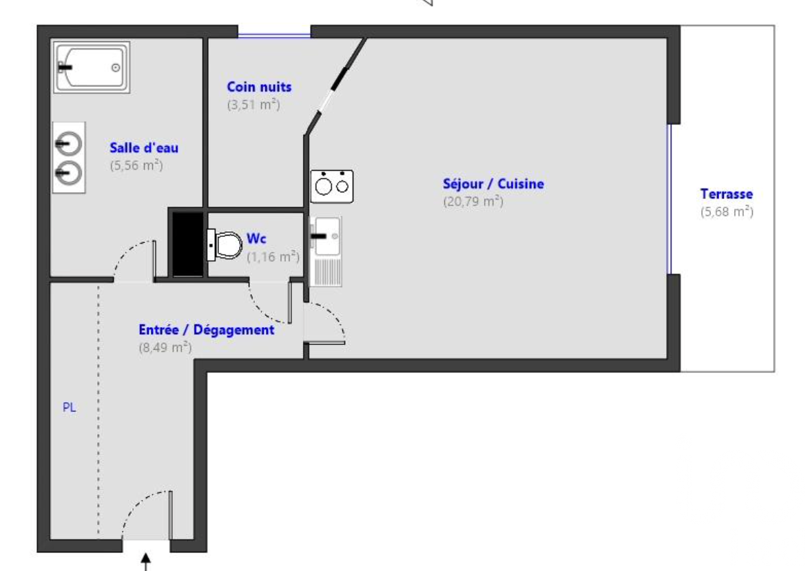
Iad France - Alexis Dayon vous propose : Opportunité à Saisir - en plein cOEur de Sainte-Maxime. Vous êtes à seulement 2 minutes à pied de la plage et de tous les commerces. Adresse : Résidence « Riviera », 13 av. Saint-Exupéry, 83120 Sainte-Maxime Résidence sécurisée de standing avec piscine, gardien et place de parking privative. Charmant T1 bis de 39 m² prolongé par une terrasse de 6 m² Le bien se compose : - d’une grande entrée avec placard, - d’une salle de bain entièrement rénovée en 2024, - de WC séparés, - d’une spacieuse pièce de vie de 20 m², - d’une chambre cabine actuellement aménagée avec un lit superposé pour deux enfants, offrant la possibilité d’y installer un lit de 130 cm. L’ensemble s’ouvre sur une terrasse de 6 m², permettant d’y prendre les repas à 4 personnes. Exposition idéal avec le soleil sur la terrasse du matin jusqu'au milieu d'après midi. Atouts clés : - Emplacement hyper-centre : plage, port, commerces et marché à pied - Résidence recherchée avec piscine et gardien - Faible Charges : 103 € / mois - Terrasse agréable bien exposée pour profiter du soleil du matin jusqu’au milieu d’après-midi - Place de parking privative incluse - Aucune anomalie électrique - Quote-part générale : 0,90 %. / Quote-part bâtiment : 3,39 % - Aucun gros travaux voté ou à prévoir - DPE : D La presente annonce immobiliere vise 2 lots situés dans une copropriété de 145 lots au total et ne faisant l'objet d'aucune procédure en cours citée à l'article L. 721-1 du code de la construction et de l'habitation. Montant moyen mensuel de charges déclaré par le vendeur : 103€ par mois (soit 1236 € annuel). Honoraires d'agence à la charge du vendeur. Information d'affichage énergétique sur ce bien : classe ENERGIE E indice 292 et classe CLIMAT B indice 9. Les informations sur les risques auxquels ce bien est exposé, y compris l'obligation légale de débroussaillement, sont disponibles sur le site Géorisques : http://www.georisques.gouv.fr. La présente annonce immobilière a été rédigée sous la responsabilité éditoriale de M Alexis Dayon mandataire indépendant en immobilier (sans détention de fonds), agent commercial de la SAS I@D France immatriculé au RSAC de NANTERRE sous le numéro 941926545, titulaire de la carte de démarchage immobilier pour le compte de la société I@D France SAS.
À proximité
Recherche des commodités à proximité...
Détails de l'annonce
Localisation
Ville
Sainte-Maxime
Pays
FR
Diagnostics / Énergie
Diagnostic DPE
241
Diagnostic GES
9
Surfaces / Pièces / Composition
Nombre d’étages
5
Chauffage et diagnostics
Diagnostic de performance énergétique (DPE)
a
b
c
d
e
f
g
Indice d'émission de gaz à effet de serre (GES)
a
b
c
d
e
f
g
