*DERNIER ETAGE vue panoramique sur Bordeaux!* Appartement d'EXCEPTION traversant avec ROOFTOP et 2 places de parking !
Publié le 14 April 2026
Type
Bien immobilierTarif
1 500 000 €Chambres
3Salles de bain
1*DERNIER ETAGE vue panoramique sur Bordeaux!* Appartement d'EXCEPTION traversant avec ROOFTOP et 2 places de parking !
Élégance rare à Bordeaux.
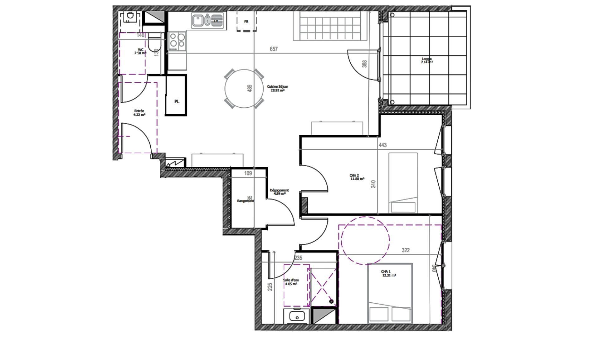
Au sommet de la résidence, ce sublime appartement occupe seul l'intégralité d'un étage, accessible par un palier privatif. Il offre un cadre de vie privilégié alliant intimité absolue, vues imprenables et volumes spectaculaires.
L'espace de réception, baigné de lumière grâce à de larges baies vitrées, se prolonge naturellement sur plusieurs terrasses, véritables jardins suspendus invitant à la détente ou à la réception.
L'intérieur, pensé avec raffinement, accueille trois chambres généreuses, dont une magnifique suite avec dressing et salle d'eau attenante, ainsi qu'un espace buanderie discrètement intégré. Deux salles d'eau élégantes, un agencement intelligent et une distribution fluide accentuent le confort.
Les prestations sont à la hauteur : nombreux rangements sur mesure, équipements premium et matériaux nobles pour une atmosphère sophistiquée.
Dans cette résidence de prestige, confort, sécurité et design se conjuguent avec harmonie.
Quartier résidentiel prisé de Bordeaux, Caudéran séduit par son ambiance paisible, ses adresses élégantes, ses établissements scolaires réputés et son cadre de vie verdoyant, idéal pour une clientèle en quête de sérénité sans renoncer aux commodités urbaines.
Photos non contractuelles -
Logement certifié BBC Nouvelle norme de réglementation thermique et haute qualité environnementale
ELIGIBLE PTZ et FRAIS DE NOTAIRE REDUITS.
Plans, rendez-vous d'information et réservations sur demande.
Joignable 7/7 Charlotte
Ce mois
Cette annonce est récente
À proximité
Recherche des commodités à proximité...
Détails de l'annonce
Finances / Mandat / Références
Charges
€
Localisation
Ville
Bordeaux
Pays
France
Surfaces / Pièces / Composition
Surface habitable
130 m²
Nombre de pièces
4
Nombre de chambres
3
Caractéristiques / Équipements
Meublé
Nombre de parkings
Diagnostics / Énergie
Diagnostic DPE
A
Chauffage / Énergie
Type de chauffage
Type : individuel
Chauffage et diagnostics
Diagnostic de performance énergétique (DPE)
a
b
c
d
e
f
g
Indice d'émission de gaz à effet de serre (GES)
a
b
c
d
e
f
g
