Type
Bien immobilierTarif
185 000 €Chambres
2Salles de bain
0Vente Appartement 3 pièces
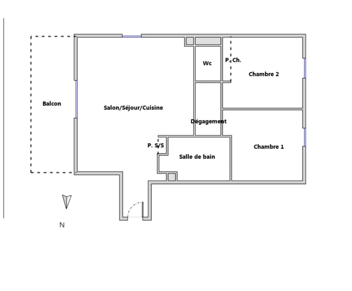
Iad France - Elodie Robelin vous propose : Appartement 3 Pièces lumineux avec balcon - Secteur Parilly. - Adresse : 101 Avenue Jules Guesde, Vénissieux - Surface : 57 m² Carrez + balcon 11 m² - Etage : 2e / 5 avec ascenseur - Résidence de 2015 - Appartement lumineux et sans perte d'espace - Chauffage individuel au gaz - Accès PMR -Professions libérales autorisées - Garage en option → Une belle opportunité à découvrir sans tarder ! Situé dans une résidence récente, bien entretenue et paisible, cet appartement T3 de 57 m² offre un cadre de vie agréable et fonctionnel. Il séduit par son agencement optimisé et sa luminosité naturelle grâce à une triple exposition Est / Sud / Ouest. Vous profiterez d'un séjour spacieux de 27 m² avec cuisine ouvrant sur un balcon de 11 m², idéal pour vos moments de détente en extérieur. Les deux chambres confortables de 11 m² et 9,5 m² avec placard, la salle de bain et les wc indépendants complètent ce bien parfaitement entretenu. Jardin dans la copropriété. Possibilité d'acquérir un garage : 15.000€ → Un emplacement recherché et pratique Situé proche du Parc de Parilly, l'appartement bénéficie d'un environnement calme et central à proximité immédiate : des commerces, écoles et services du quotidien, des transports en commun : métro Parilly et tram T4 arrêt Gare de Vénissieux, bus. → Un bien à fort potentiel : ce T3 est idéal pour : - un investissement locatif rentable, - une résidence principale pour une famille, -professions libérales. → A retenir Appartement, au 2e étage avec ascenseur, dans une résidence récente offrant luminosité, confort et praticité au quotidien. Résidence sécurisée : visiophone, caméras. Garage en option. Un bien rare sur le secteur, prêt à vous accueillir ! Contactez-moi dès maintenant pour organiser une visite et découvrir tout le potentiel de cet appartement. La presente annonce immobiliere vise 2 lots situés dans une copropriété de 360 lots au total et ne faisant l'objet d'aucune procédure en cours citée à l'article L. 721-1 du code de la construction et de l'habitation. Montant moyen mensuel de charges déclaré par le vendeur : 100€ par mois (soit 1200 € annuel). Honoraires d'agence à la charge du vendeur. Information d'affichage énergétique sur ce bien : classe ENERGIE C indice 113 et classe CLIMAT C indice 22. Les informations sur les risques auxquels ce bien est exposé, y compris l'obligation légale de débroussaillement, sont disponibles sur le site Géorisques : http://www.georisques.gouv.fr. La présente annonce immobilière a été rédigée sous la responsabilité éditoriale de Mme Elodie Robelin mandataire indépendant en immobilier (sans détention de fonds), agent commercial de la SAS I@D France immatriculé au RSAC de LYON sous le numéro 992383216, titulaire de la carte de démarchage immobilier pour le compte de la société I@D France SAS.
À proximité
Recherche des commodités à proximité...
Détails de l'annonce
Localisation
Ville
Vénissieux
Pays
FR
Diagnostics / Énergie
Diagnostic DPE
113
Diagnostic GES
22
Surfaces / Pièces / Composition
Nombre d’étages
5
Étage
2
Chauffage et diagnostics
Diagnostic de performance énergétique (DPE)
a
b
c
d
e
f
g
Indice d'émission de gaz à effet de serre (GES)
a
b
c
d
e
f
g
