SUPERBE T2 de 50M2 avec GRANS SEJOUR ET TERRASSE DE 11m2 , idéalement situé à 9 min. à pieds du RER A
Publié le 20 April 2026
Type
Bien immobilierTarif
299 000 €Chambres
1Salles de bain
1SUPERBE T2 de 50M2 avec GRANS SEJOUR ET TERRASSE DE 11m2 , idéalement situé à 9 min. à pieds du RER A
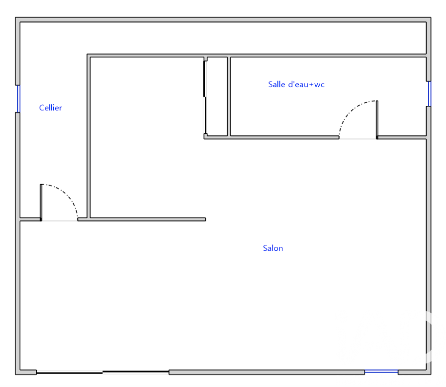
BEAU T2 LUMINEUX AVEC GRAND SEJOUR et TERRASSE idéalement situé à 9 min. à pieds du RER A
GRAND SEJOUR AVEC UN accès à la TERRASSE de 11m2, 1 chambre
1 SDE, 1 WC séparés, 1 PLACARD.
Résidence haut de gamme, écologique, moderne et sécurisée avec de nombreux espaces verts collectifs pour les familles en coeur de résidence.
Commerces, groupe scolaire, crèches à proximité.
1 Parking inclus.
Plans, rendez-vous d'information et réservations sur demande.
Bâtiment neuf, normes RT 2012/2020, faibles charges.
Photos destinées à exprimer une intention architecturale, non contractuelles.
Joignable 7J/7 au 06 52 90 69 31. Réservations sur demande.
Ce mois
Cette annonce est récente
À proximité
Recherche des commodités à proximité...
Détails de l'annonce
Finances / Mandat / Références
Charges
€
Localisation
Ville
Sucy En Brie
Pays
France
Surfaces / Pièces / Composition
Surface habitable
50 m²
Nombre de pièces
2
Caractéristiques / Équipements
Meublé
Nombre de parkings
Orientations
Orientation (simple)
sud-ouest
Cuisine
Type de cuisine
séparée
Chauffage et diagnostics
Diagnostic de performance énergétique (DPE)
a
b
c
d
e
f
g
Indice d'émission de gaz à effet de serre (GES)
a
b
c
d
e
f
g
