Type
Bien immobilierTarif
350 000 €Chambres
4Salles de bain
0Family house / real estate complex with swimming pool
Ref 2436LD: LAPALUD. Family villa with swimming pool in a green setting, on a fenced and wooded land of about 1100m² (olive tree, citrus fruits) with borehole and new electric gate.
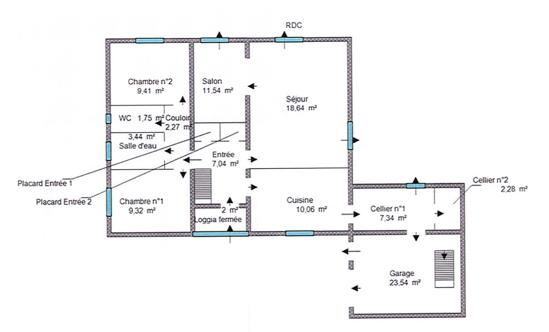
On the 1st floor, the main dwelling offers a bright living room with an open fitted kitchen, terrace, recent shower room, 3 beautiful bedrooms with dressing room, and a large cellar.
On the ground floor, a studio and a T2 apartment, perfect for rental project or welcoming family and friends. Workshop, car shelter, and hangar complete this property offering comfort and good rental potential. A must-see!
Cette semaine
Cette annonce est récente
À proximité
Recherche des commodités à proximité...
Détails de l'annonce
Finances / Mandat / Références
Charges
€
Dépôt de garantie
€
Localisation
Ville
Lapalud
Pays
FR
Diagnostics / Énergie
Diagnostic DPE
238
Diagnostic GES
7
Chauffage / Énergie
Chauffage
Radiateur
Accès
Individuel
Énergie
Électrique
Type de chauffage
3
Énergie
3
Surfaces / Pièces / Composition
Surface (m²)
151.34 m²
Nombre de pièces
5
Nombre de chambres
4
Nombre d’étages
2
Caractéristiques / Équipements
Terrain viabilisé
Chauffage et diagnostics
Diagnostic de performance énergétique (DPE)
a
b
c
d
e
f
g
Indice d'émission de gaz à effet de serre (GES)
a
b
c
d
e
f
g
