Type
Bien immobilierTarif
166 400 €Chambres
2Salles de bain
0Vente Maison de campagne 9 pièces
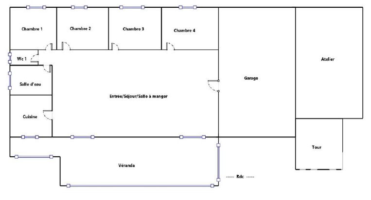
Iad France - Carole Renaudin vous propose : ET SI VOUS CHANGIEZ DE RYTHME pour vous installer au cOEur de la nature, à 15 mn de Loches ! C'EST ICI : Au cOEur d’un environnement paisible et verdoyant, à mi-chemin entre Saint-Senoch et Saint-Flovier (dans la campagne de Betz le Château), découvrez cette charmante maison familiale d'environ 165 m² offrant de généreux volumes et un fort potentiel d’aménagement. Dès l’entrée, une véranda lumineuse vous accueille et s’ouvre sur une agréable pièce de vie chaleureuse de 41 m² env., agrémentée d’une cheminée avec insert, idéale pour partager de précieux moments en famille. La cuisine aménagée et équipée allie confort et fonctionnalité. Le rez-de-chaussée propose également quatre pièces polyvalentes pouvant accueillir chambres d’enfants, bureaux ou espaces de loisirs, ainsi qu’une salle d’eau avec WC et un WC indépendant. Dans le prolongement de l’habitation, une vaste pièce multifonctionnelle (buanderie, chaufferie, garage) offre un bel espace modulable selon vos besoins, avec un accès direct à l’étage. À l’étage, un très grand palier aux possibilités d'aménagement multiples, dessert deux chambres supplémentaires (11 et 17 m² env.) et une salle d’eau avec WC, parfait pour créer un espace nuit indépendant. Un atelier / garage attenant de 51 m² env, directement accessible depuis la maison, vient compléter l’ensemble, ainsi qu’une pièce additionnelle avec grenier en tour laissant place à de nombreuses possibilités d’aménagement ou de stockage. Une cave sous une partie de la maison complète cette description. L'extérieur propose, sur une parcelle totale de 9 330 m², un espace de 3 000 m² entièrement clos avec portail coulissant motorisable. Le jardin accueille également une maisonnette pour animaux et plusieurs dépendances, idéales pour le rangement ou les projets annexes. Cette maison à réaménager et rafraîchir selon vos envies et besoins est parfaite pour : -Voir grandir une famille heureuse -Travailler au vert en toute sérénité -Créer un lieu de vie chaleureux et authentique -Profiter chaque jour du calme de la campagne -Réunir des amoureux de nature et de grands espaces souhaitant conjuguer calme et proximité des commodités - situation à 15 minutes de Loches Un lieu de vie sincère et plein de charme, un bien rare au fort potentiel, offrant espace, tranquillité et liberté d’aménagement et de rénovation. Venez la découvrir… et laissez-vous simplement séduire. Honoraires d'agence à la charge du vendeur. Information d'affichage énergétique sur ce bien : classe ENERGIE D indice 169 et classe CLIMAT D indice 30. Les informations sur les risques auxquels ce bien est exposé, y compris l'obligation légale de débroussaillement, sont disponibles sur le site Géorisques : http://www.georisques.gouv.fr. La présente annonce immobilière a été rédigée sous la responsabilité éditoriale de Mme Carole Renaudin mandataire indépendant en immobilier (sans détention de fonds), agent commercial de la SAS I@D France immatriculé au RSAC de TOURS sous le numéro 793676123, titulaire de la carte de démarchage immobilier pour le compte de la société I@D France SAS.
Cette semaine
Cette annonce est récente
À proximité
Recherche des commodités à proximité...
Détails de l'annonce
Localisation
Ville
Betz-le-Château
Pays
FR
Diagnostics / Énergie
Diagnostic DPE
169
Diagnostic GES
30
Surfaces / Pièces / Composition
Nombre d’étages
2
Chauffage et diagnostics
Diagnostic de performance énergétique (DPE)
a
b
c
d
e
f
g
Indice d'émission de gaz à effet de serre (GES)
a
b
c
d
e
f
g
