Type
Bien immobilierTarif
265 000 €Chambres
4Salles de bain
0Vente Maison traditionnelle 5 pièces
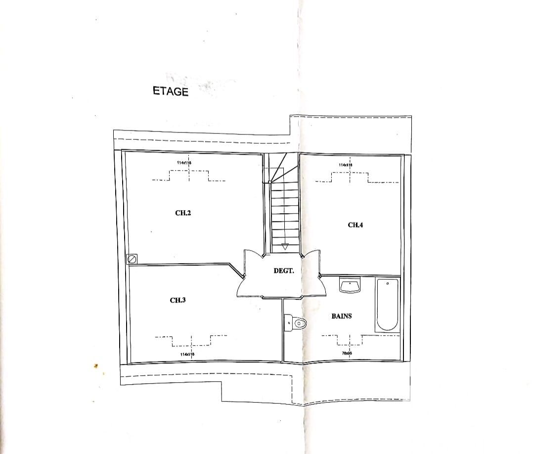
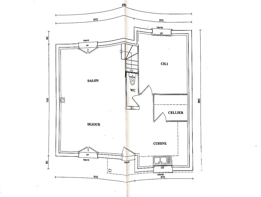
Iad France - Emmanuelle Caro vous propose : BEGARD * PROCHE CENTRE VILLE * 4 CHAMBRES * VIE DE PLAIN-PIED * SUITE PARENTALE EN REZ-DE-CHAUSSEE * JARDIN CLOS * DPE EN C * AUCUN TRAVAUX A PREVOIR * Bienvenue dans cette charmante maison bâtie en 2000, fonctionnelle et parfaitement entretenue. Située dans un environnement calme, à proximité du centre ville de Bégard et toutes ses commodités, cette maison traditionnelle de 95 m² offre un espace de vie confortable et moderne. * Au rez-de-chaussée : salon / séjour avec poêle à bois, une cuisine aménagée et équipée récente, un cellier / buanderie attenant à la cuisine, une chambre disposant d'une salle d'eau privative, des WC séparés, une terrasse exposée sud / ouest. * A l'étage : 3 chambres et une salle de bain avec WC. Le jardin de plus de 1000 m² est entièrement clos, disposant d'une grande cour gravillonnée et d'un espace engazonné. Abris de jardin. Chauffage électrique, poêle à bois performant, bonne isolation, VMC, fibre optique, assainissement relié au tout-à-l'égout, terrain constructible (zone UHC). Contactez moi pour plus d'informations. Honoraires d'agence à la charge du vendeur. Information d'affichage énergétique sur ce bien : classe ENERGIE D indice 194 et classe CLIMAT B indice 6. Les informations sur les risques auxquels ce bien est exposé, y compris l'obligation légale de débroussaillement, sont disponibles sur le site Géorisques : http://www.georisques.gouv.fr. La présente annonce immobilière a été rédigée sous la responsabilité éditoriale de Mme Emmanuelle Caro mandataire indépendant en immobilier (sans détention de fonds), agent commercial de la SAS I@D France immatriculé au RSAC de SAINT BRIEUC sous le numéro 853917722, titulaire de la carte de démarchage immobilier pour le compte de la société I@D France SAS.
Ce mois
Cette annonce est récente
À proximité
Recherche des commodités à proximité...
Détails de l'annonce
Localisation
Ville
Bégard
Pays
FR
Diagnostics / Énergie
Diagnostic DPE
165
Diagnostic GES
6
Surfaces / Pièces / Composition
Nombre d’étages
2
Chauffage et diagnostics
Diagnostic de performance énergétique (DPE)
a
b
c
d
e
f
g
Indice d'émission de gaz à effet de serre (GES)
a
b
c
d
e
f
g
