Type
Bien immobilierTarif
750 000 €Chambres
7Salles de bain
0Vente Maison/villa 11 pièces
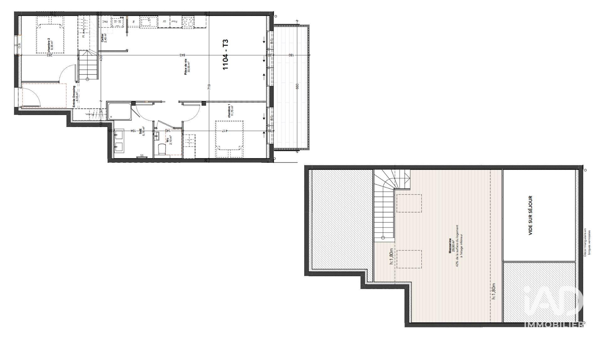
Iad France - Florie Chartrou vous propose : Maison familiale & appartements indépendants – À moins de 1,5 km de la plage, à seulement 300 m de l’école, avec un arrêt de bus à 50 m et les commerces à quelques minutes, cette grande maison sur 3 niveaux vous offre un cadre de vie pratique et agréable. En rez-de-chaussée : Un garage, et deux T2 de 35 et 45 m² (cuisine, chambre séparée, salle d’eau avec WC) Niveau + 1 : une grande entrée, WC, une cuisine spacieuse équipée ouvrant sur un balcon, une salle d’eau, deux belles chambres et un séjour traversant de 44 m² avec balcon d’un côté et accès direct au jardin de l’autre. Niveau + 2 : un palier qui dessert une grande chambre divisible en deux, une salle de bain avec WC, ainsi que deux pièces sous combles parfaites pour accueillir des chambres supplémentaires, des bureaux ou des espaces de rangement. Cette maison coche toutes les cases pour un projet familial intergénérationnel, ou encore pour un investisseur (délotage possible, plus d’infos sur demande). Honoraires d'agence à la charge du vendeur. Information d'affichage énergétique sur ce bien : classe ENERGIE E indice 273 et classe CLIMAT C indice 28. Les informations sur les risques auxquels ce bien est exposé, y compris l'obligation légale de débroussaillement, sont disponibles sur le site Géorisques : http://www.georisques.gouv.fr. La présente annonce immobilière a été rédigée sous la responsabilité éditoriale de Mme Florie Chartrou mandataire indépendant en immobilier (sans détention de fonds), agent commercial de la SAS I@D France immatriculé au RSAC de Bayonne sous le numéro 810743047, titulaire de la carte de démarchage immobilier pour le compte de la société I@D France SAS.
À proximité
Recherche des commodités à proximité...
Détails de l'annonce
Localisation
Ville
Hendaye
Pays
FR
Diagnostics / Énergie
Diagnostic DPE
273
Diagnostic GES
28
Surfaces / Pièces / Composition
Nombre d’étages
3
Chauffage et diagnostics
Diagnostic de performance énergétique (DPE)
a
b
c
d
e
f
g
Indice d'émission de gaz à effet de serre (GES)
a
b
c
d
e
f
g
