Location cabinet de consultation meublé dans Maison de Santé neuve à VEIGY-FONCENEX
Publié le 11 March 2025
Type
Bien immobilierTarif
408 € /moisChambres
0Salles de bain
0Location cabinet de consultation meublé dans Maison de Santé neuve à VEIGY-FONCENEX
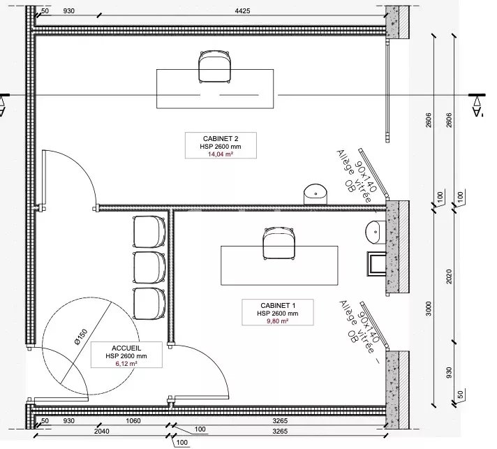
Réf : 2378aAF : EN PRE-RESERVATION : Sur la commune de VEIGY-FONCENEX, beau et lumineux cabinet de consultation meublé, de 9.80m² (cabinet 1 sur le plan), situé au rez-de-chaussée, avec ascenseur et aux normes PMR, dans une Maison de Santé en cours de construction, avec goût et modernité.
Ce bien est destiné aux professions médicales, paramédicales et bien-être.
Ce cabinet, avec son point d'eau, se situe dans un espace comprenant un autre cabinet, une salle d'attente commune et un espace commun à tous les praticiens de la Maison de Santé, comprenant une cuisine et une belle terrasse.
De nombreuses places de stationnement gratuites sont disponibles pour la clientèle.
Possibilité de louer une place de stationnement privative pour 30€ TTC/mois.
Ce bien est disponible en pré-réservation et sera livré au 1er trimestre 2026.
Loyer : 490€ TTC hors charges + 30€ TTC de provision sur charges comprenant l'électricité, l'eau, l'entretien des communs et 1/2 de la taxe foncière.
Très belle visibilité et accessibilité pour la clientèle.
Proche de la frontière Suisse.
A découvrir sans plus attendre!
À proximité
Recherche des commodités à proximité...
Détails de l'annonce
Finances / Mandat / Références
Charges
€
Dépôt de garantie
980 €
Dépôt de garantie
980 €
Localisation
Ville
Veigy-Foncenex
Pays
FR
Diagnostics / Énergie
Diagnostic DPE
-3
Diagnostic GES
-3
Chauffage / Énergie
Chauffage
Climatisation
Accès
Individuel
Énergie
Électrique
Type de chauffage
5
Énergie
3
Surfaces / Pièces / Composition
Surface (m²)
9.8 m²
Nombre de chambres
Étage
Caractéristiques / Équipements
Terrain viabilisé
Chauffage et diagnostics
Diagnostic de performance énergétique (DPE)
a
b
c
d
e
f
g
Indice d'émission de gaz à effet de serre (GES)
a
b
c
d
e
f
g
