Trouver...

Language: FR

Devise: EUR

Type
Bien immobilier
Tarif
296 000 €
Chambres
0
Salles de bain
0

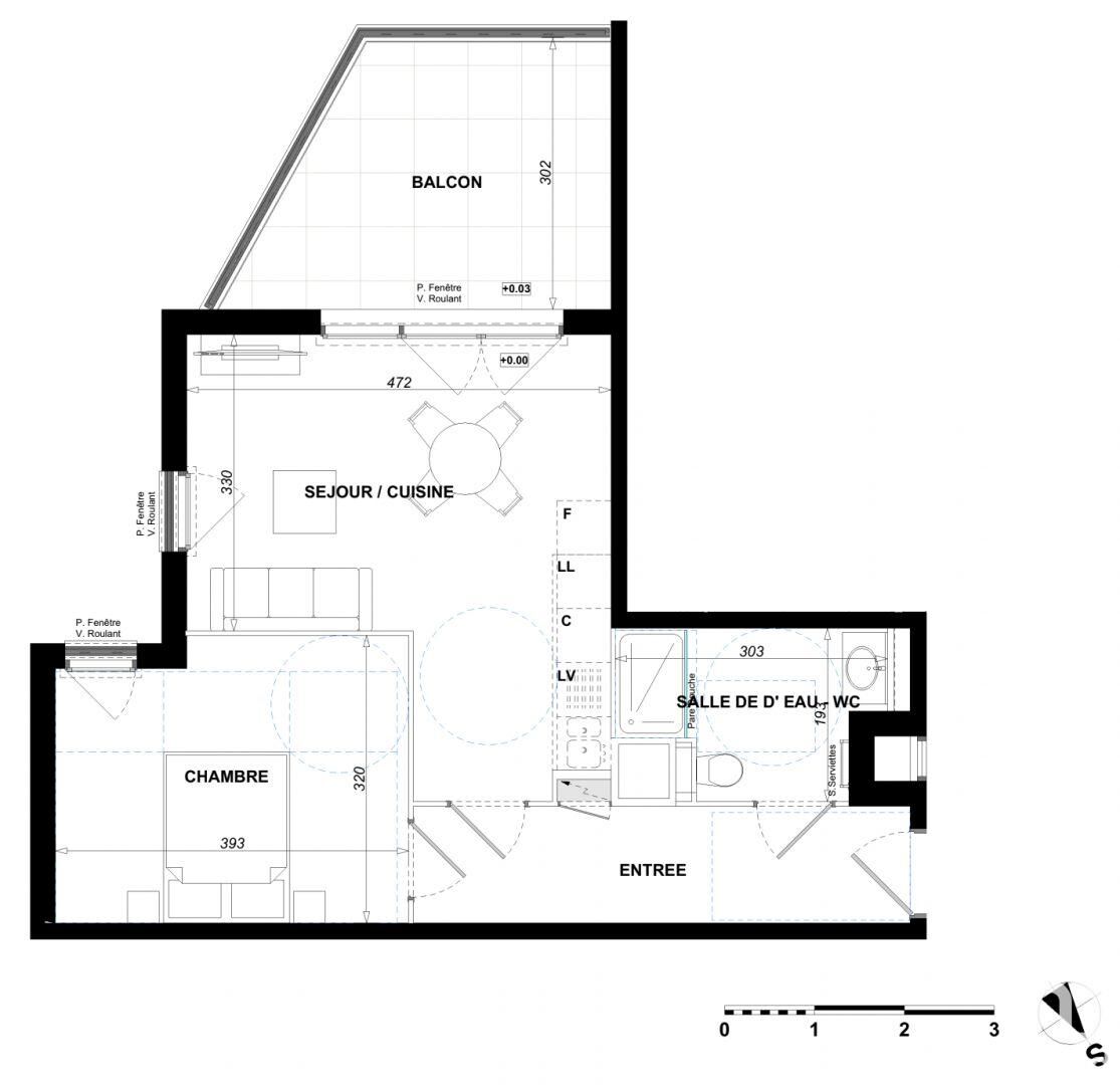
Vente Appartement 2 pièces

Iad France - Jessica Alessandrini (06 73 75 66 47) vous propose : Élégant 2 pièces avec balcon et parking – Antibes Dans un quartier paisible et recherché d’Antibes, découvrez ce bel appartement 2 pièces situé en étage élevé, bénéficiant d’une exposition nord-ouest et d’une vue dégagée. Idéal pour un investissement locatif ou une résidence principale, ce bien combine luminosité, modernité et prestations de qualité. ________________________________________ ? Caractéristiques du bien •Type : Appartement T2 •Étage : 3? étage •Surface habitable : 43,5 m² environ •Balcon : 10,5 m² environ •Exposition : Nord-Ouest •Stationnement : 1 place privative en sous-sol •Chauffage : Électrique individuel •Performance énergétique : Conforme aux dernières normes thermiques et acoustiques ________________________________________ ? Prestations et confort •Résidence sécurisée et soignée •Volets roulants électriques •Carrelage grand format dans toutes les pièces principales •Salle d’eau équipée avec meuble vasque, miroir, faïence murale et sèche-serviettes •Double vitrage et isolation phonique renforcée •Ascenseur, local vélos, et espaces communs paysagers •Environnement calme et verdoyant ________________________________________ ? Cadre de vie Situé dans un secteur résidentiel d’Antibes, cet appartement profite d’un emplacement stratégique à proximité immédiate des commerces, écoles, transports et des principaux axes routiers. Le centre-ville, les plages et Sophia Antipolis sont accessibles en quelques minutes seulement, offrant un équilibre parfait entre vie citadine et sérénité. ________________________________________ ? Informations financières •Prix de vente : 296 000 € •Frais de notaire à la charge du vendeur •Loyer de marché estimé : 770 € / mois •Rentabilité brute estimée : 3,4 % •Parking inclus dans le prix ________________________________________ ? Les points forts •Espace lumineux et bien agencé •Balcon de 10,5 m² environ offrant un bel espace extérieur •Chambre spacieuse de 12 m² environ •Prestations contemporaines et confort moderne •Parking privatif sécurisé •Frais de notaire offerts •Emplacement calme et recherché, parfait pour habiter ou investir Honoraires d’agence à la charge du vendeur. Bien non soumis au DPE. Les informations sur les risques auxquels ce bien est exposé sont disponibles sur le site Géorisques : www.georisques.gouv.fr. La présente annonce immobilière a été rédigée sous la responsabilité éditoriale de Mlle Jessica Alessandrini EI (ID 90440), mandataire indépendant en immobilier (sans détention de fonds), agent commercial de la SAS I@D France immatriculé au RSAC de Draguigan sous le numéro 451826549, titulaire de la carte de démarchage immobilier pour le compte de la société I@D France SAS. Retrouvez tous nos biens sur notre site internet. www.iadfrance.fr.

Détails de l'annonce

Localisation

Ville
Antibes
Pays
FR

Surfaces / Pièces / Composition

Nombre d’étages

Chauffage et diagnostics

Diagnostic de performance énergétique (DPE)
a
b
c
d
e
f
g
Indice d'émission de gaz à effet de serre (GES)
a
b
c
d
e
f
g
Rappelez-moi
Nos partenaires