Vente Terrain à bâtir 430 m²
Type
Bien immobilierTarif
170 000 €Chambres
0Salles de bain
0Vente Terrain à bâtir 430 m²
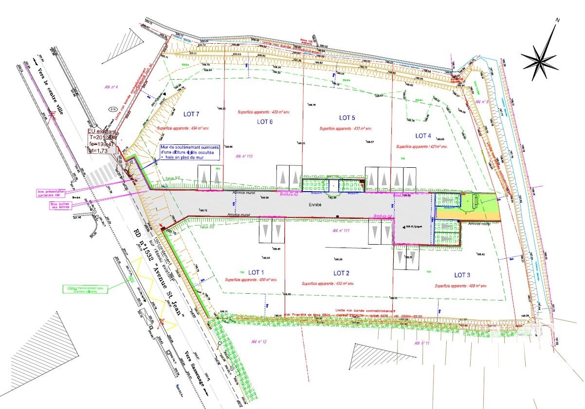
Iad France - Clément FAURE vous propose : NOYAREY - 38360 : Terrains à bâtir viabilisés, au sein d'un lotissement de 7 lots, construction libre, idéale pour un projet de maison individuelle. Surface plancher autorisée de 140 m² pour chaque parcelle (possibilité évolutif au cas par cas). Lot 2 : 430 m² environ - Environnement résidentiel, calme et recherché, à proximité des commodités et transports - Terrains bien exposés et prêts à construire. Pour plus d'informations ou organiser une visite, n'hésitez pas à me contacter La presente annonce immobiliere vise 1 lot situé dans une copropriété de 7 lots au total citée à l'article L. 721-1 du code de la construction et de l'habitation. Montant moyen mensuel de charges déclaré par le vendeur : 0€ par mois (soit 0 € annuel). Honoraires d'agence à la charge du vendeur. Bien non soumis au DPE. Les informations sur les risques auxquels ce bien est exposé, y compris l'obligation légale de débroussaillement, sont disponibles sur le site Géorisques : http://www.georisques.gouv.fr. La présente annonce immobilière a été rédigée sous la responsabilité éditoriale de M Clément FAURE mandataire indépendant en immobilier (sans détention de fonds), agent commercial de la SAS I@D France immatriculé au RSAC de GRENOBLE sous le numéro 838791663, titulaire de la carte de démarchage immobilier pour le compte de la société I@D France SAS.
Détails de l'annonce
Localisation
Ville
Noyarey
Pays
FR
Surfaces / Pièces / Composition
Nombre d’étages
Chauffage et diagnostics
Diagnostic de performance énergétique (DPE)
a
b
c
d
e
f
g
Indice d'émission de gaz à effet de serre (GES)
a
b
c
d
e
f
g
