Trouver...

Language: FR

Devise: EUR

Vente Immeuble 313 m²

Publié le 15 September 2025
Type
Bien immobilier
Tarif
1 230 000 €
Chambres
0
Salles de bain
0

Vente Immeuble 313 m²

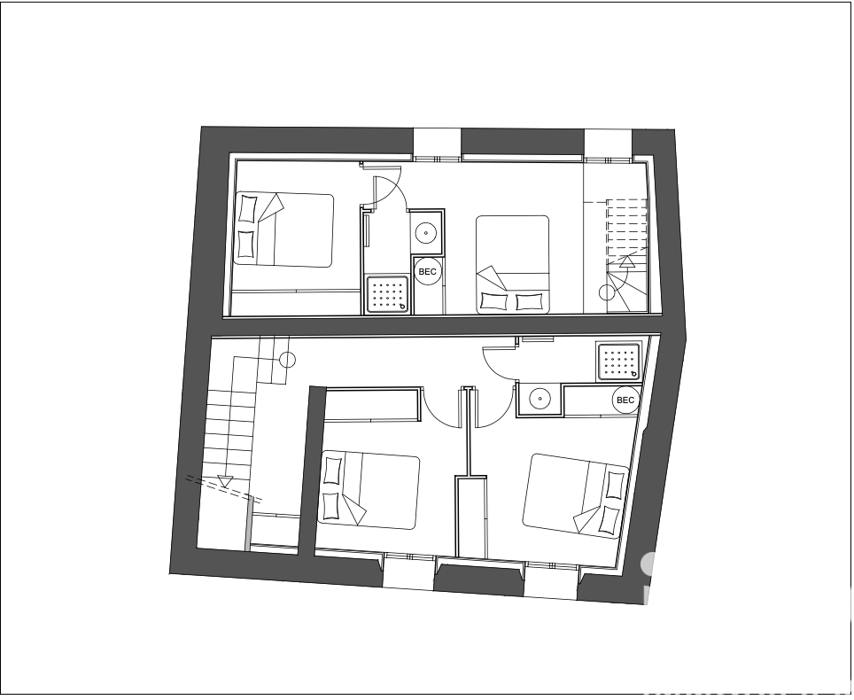
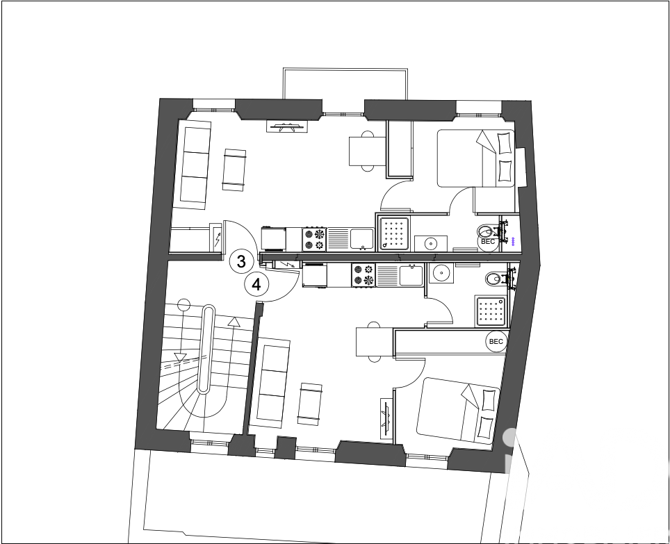
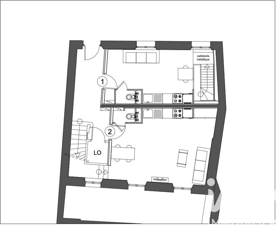
Iad France - Benoit Tordo vous propose : CANNES - IMMEUBLE DE RAPPORT – QUARTIER PRADO / ANGLAIS CANNES – Quartier Prado / Anglais, immeuble en mono-propriété composé de 8 appartements, tous loués en bail meublé. L’ensemble génère un revenu locatif annuel de 62 000 € hors charges (Voir tableau en détail) Immeuble bien entretenu, aucun gros travaux à prévoir. Le DPE des appartements varie entre D et E. Situation idéale, dans un secteur résidentiel et recherché, à proximité des commerces, des transports et du centre-ville. Un bien idéal pour un investissement locatif sécurisé avec rentabilité immédiate. Dossier et RDV visite sur demande par SMS. MERCI Honoraires d'agence à la charge du vendeur. Information d'affichage énergétique sur ce bien : classe ENERGIE D indice 159 et classe CLIMAT D indice 34. Les informations sur les risques auxquels ce bien est exposé, y compris l'obligation légale de débroussaillement, sont disponibles sur le site Géorisques : http://www.georisques.gouv.fr. La présente annonce immobilière a été rédigée sous la responsabilité éditoriale de M Benoit Tordo mandataire indépendant en immobilier (sans détention de fonds), agent commercial de la SAS I@D France immatriculé au RSAC de NICE sous le numéro 510521263, titulaire de la carte de démarchage immobilier pour le compte de la société I@D France SAS.

À proximité

Recherche des commodités à proximité...

Détails de l'annonce

Localisation

Ville
Cannes
Pays
FR

Diagnostics / Énergie

Diagnostic DPE
159
Diagnostic GES
34

Surfaces / Pièces / Composition

Nombre d’étages
3

Chauffage et diagnostics

Diagnostic de performance énergétique (DPE)
a
b
c
d
e
f
g
Indice d'émission de gaz à effet de serre (GES)
a
b
c
d
e
f
g
Rappelez-moi