Type
Bien immobilierTarif
269 000 €Chambres
6Salles de bain
0Vente Maison de village 10 pièces
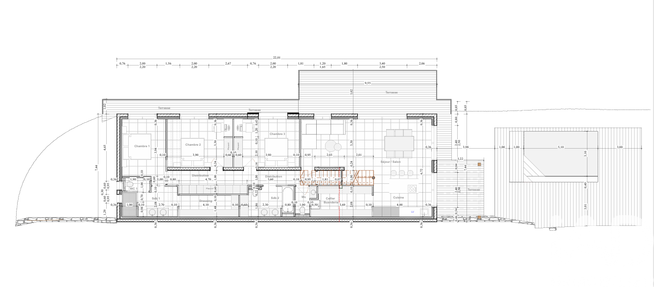
Iad France - Saida Jeymond vous propose : Magnifique Maison de Village Rénovée avec Jardin attenant, Piscine et Garage à Serre-Nerpol. Bienvenue dans cette magnifique maison de caractère, idéalement située au cOEur du village de Serre-Nerpol. Entièrement rénovée avec goût, cette maison de village offre un cadre de vie exceptionnel, alliant le charme de l'ancien au confort moderne. Dès l'entrée, vous serez charmé par le séjour lumineux donnant sur une agréable terrasse couverte et le jardin paysager. La maison dispose d'une cuisine entièrement aménagée et équipée ouverte sur la pièce de vie, de 6 belles chambres, idéales pour accueillir une grande famille ou pour aménager des espaces de travail à domicile et d'une mezzanine offrant un espace supplémentaire à exploiter selon vos besoins. Pour votre confort, la maison dispose d'une salle de bain, d'une salle d'eau, d'un dressing complet, de deux WC indépendants, d'une chaudière fioul à condensation avec plancher chauffant et radiateurs, et d'un système d'assainissement collectif, et de la fibre optique. Vous trouverez également un sous-sol complet avec un grand garage, un atelier, une cave, des espaces de rangements et des places de parking privatives. Vous pourrez profiter des journées ensoleillées dans la piscine hors-sol et vous détendre sur la terrasse aménagée. Ce bien immobilier dispose également d'un local indépendant à usage professionnel, loué actuellement, générant ainsi un revenu foncier de 1 800 euros par an. Cette maison de village, aux prestations soignées, est un véritable havre de paix, idéal pour ceux qui recherchent un cadre de vie privilégié, à proximité des commodités et des points d'intérêt de la région. Coup de coeur assuré ! Honoraires d'agence à la charge du vendeur. Information d'affichage énergétique sur ce bien : classe ENERGIE C indice 134 et classe CLIMAT C indice 25. Les informations sur les risques auxquels ce bien est exposé, y compris l'obligation légale de débroussaillement, sont disponibles sur le site Géorisques : http://www.georisques.gouv.fr. La présente annonce immobilière a été rédigée sous la responsabilité éditoriale de Mme Saida Jeymond mandataire indépendant en immobilier (sans détention de fonds), agent commercial de la SAS I@D France immatriculé au RSAC de GRENOBLE sous le numéro 499298453, titulaire de la carte de démarchage immobilier pour le compte de la société I@D France SAS.
À proximité
Recherche des commodités à proximité...
Détails de l'annonce
Localisation
Ville
Serre-Nerpol
Pays
FR
Diagnostics / Énergie
Diagnostic DPE
134
Diagnostic GES
25
Surfaces / Pièces / Composition
Nombre d’étages
Chauffage et diagnostics
Diagnostic de performance énergétique (DPE)
a
b
c
d
e
f
g
Indice d'émission de gaz à effet de serre (GES)
a
b
c
d
e
f
g
