Trouver...

Language: FR

Devise: EUR

Vente Maison/villa 8 pièces

Publié le 18 November 2025
Type
Bien immobilier
Tarif
199 000 €
Chambres
4
Salles de bain
0

Vente Maison/villa 8 pièces

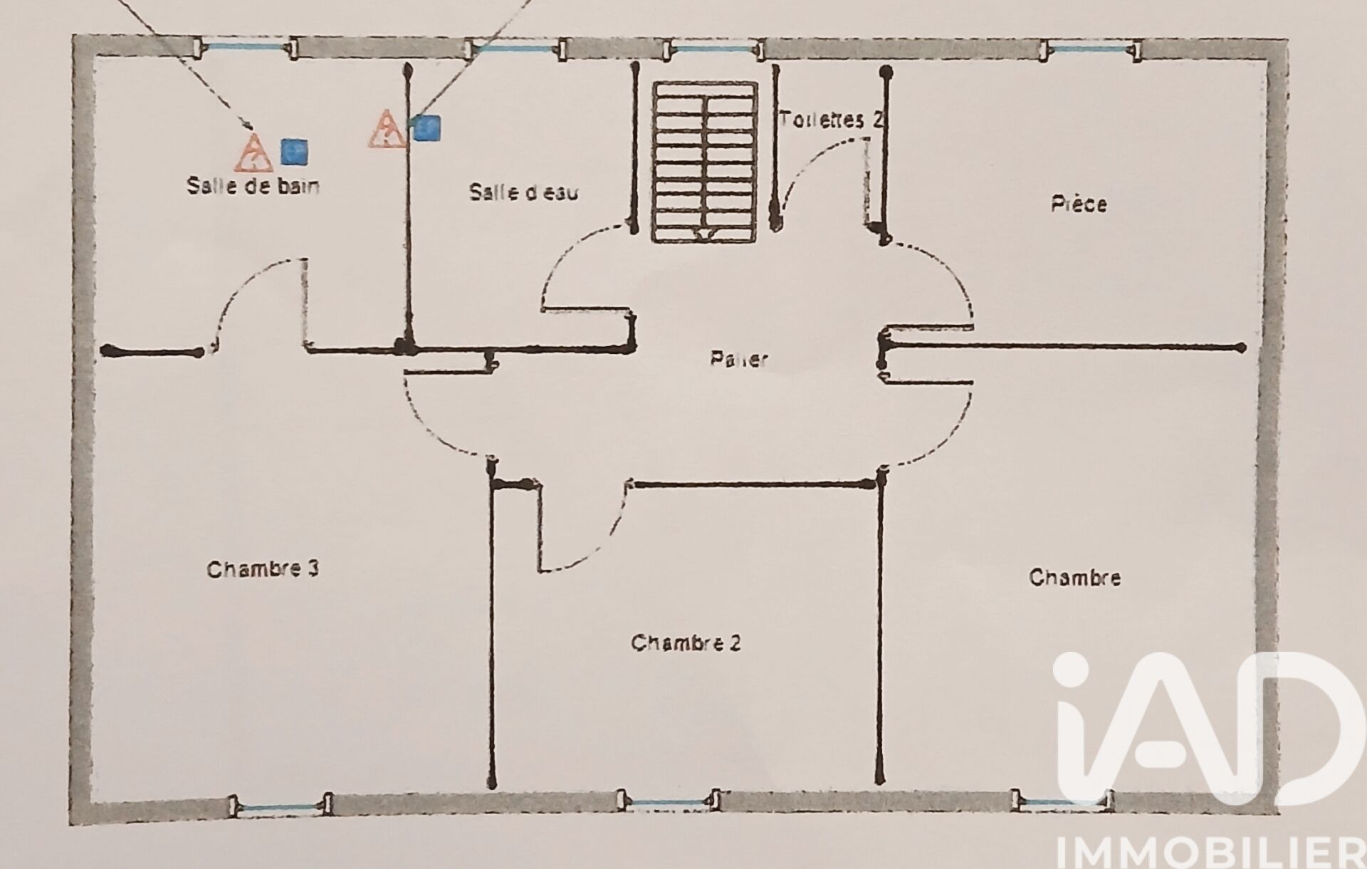
Iad France - David Genevaise vous propose : Propriété de charme du XIXe siècle à Le Coudray-Macouard - Idéal pour les Amoureux de l'Authenticité Découvrez cette magnifique maison de caractère du XIXe siècle, située à Le Coudray-Macouard, offrant calme et sérénité au cOEur d'un environnement préservé. Datant de 1850, cette demeure historique respire l'authenticité et le charme d'antan, tout en offrant le confort moderne. Sur une surface habitable de 185 m², cette propriété vous accueille dans un cadre chaleureux et convivial. Avec ses 8 pièces, dont 4 chambres spacieuses, 2 salles d'eau et 2 WC séparés, elle offre un vaste espace idéal pour une famille ou pour recevoir vos convives en toute intimité. La cuisine, véritable pièce maîtresse de la maison, est équipée tout en conservant le cachet d'origine, parfait pour les amateurs de gastronomie ou de moments conviviaux autour d'un bon repas. Une mezzanine apporte une touche d'originalité et peut être transformée en espace de détente ou de travail selon vos besoins. Le jardin de 1200 m² environ vous invite à la détente et à la contemplation, offrant un cadre verdoyant et paisible pour profiter des belles journées ensoleillées. Laissez-vous séduire par le charme de cette demeure et de son environnement bucolique. Située à proximité des commodités et des axes routiers, cette propriété allie l'art de vivre à la campagne et la facilité d'accès aux services. Une réelle opportunité pour les amoureux de l'histoire et de l'authenticité. N'attendez plus pour visiter ce bijou d'époque et laissez-vous transporter par son atmosphère unique et envoûtante. Honoraires d'agence à la charge du vendeur. Information d'affichage énergétique sur ce bien : classe ENERGIE C indice 159 et classe CLIMAT A indice 5. Les informations sur les risques auxquels ce bien est exposé, y compris l'obligation légale de débroussaillement, sont disponibles sur le site Géorisques : http://www.georisques.gouv.fr. La présente annonce immobilière a été rédigée sous la responsabilité éditoriale de M David Genevaise mandataire indépendant en immobilier (sans détention de fonds), agent commercial de la SAS I@D France immatriculé au RSAC de Angers sous le numéro 891637852, titulaire de la carte de démarchage immobilier pour le compte de la société I@D France SAS.

À proximité

Recherche des commodités à proximité...

Détails de l'annonce

Localisation

Ville
Le Coudray-Macouard
Pays
FR

Diagnostics / Énergie

Diagnostic DPE
159
Diagnostic GES
5

Surfaces / Pièces / Composition

Nombre d’étages
2

Chauffage et diagnostics

Diagnostic de performance énergétique (DPE)
a
b
c
d
e
f
g
Indice d'émission de gaz à effet de serre (GES)
a
b
c
d
e
f
g
Rappelez-moi