Type
Bien immobilierTarif
172 000 €Chambres
1Salles de bain
0Vente Appartement 2 pièces
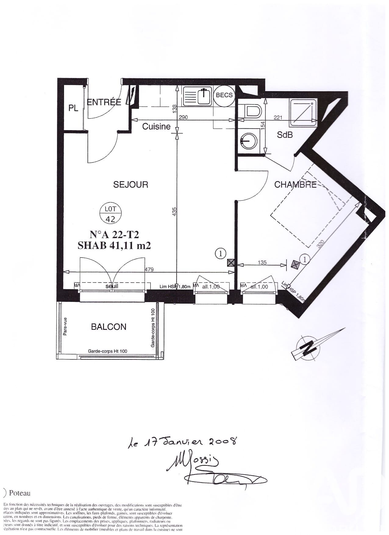
Iad France - Ludovic Drouet vous propose : Appartement 2 pièces avec Balcon à Nantes, proche quartiers Dynamiques et Proche des Commodités Découvrez cet appartement de 2 pièces avec sa surface de 41.24 m², cet appartement offre un espace moderne et fonctionnel, parfait pour un premier achat. L'appartement comprend une chambre, une salle d'eau avec WC, une cuisine à équiper et un séjour lumineux de 21 m². Il est situé au 2ème étage d'un immeuble de 2 niveaux, offrant ainsi une vue agréable et dégagée. De plus, l'exposition sud / est assurent une luminosité optimale tout au long de la journée. Vous pourrez profiter pleinement des beaux jours grâce au balcon de 4 m² offrant un espace extérieur privé pour vous détendre ou prendre vos repas en plein air. L'appartement a été entièrement rénové, garantissant ainsi un environnement moderne et confortable. Les équipements de confort tels que la télévision par câble, l'ascenseur, la ventilation mécanique et les espaces sécurisés (digicode et interphone) sont des atouts appréciables pour les résidents. Situé à proximité de la station de bus Portail Rouge desservie par les lignes C7,137 et 12, cet appartement bénéficie d'une excellente desserte en transports en commun. De plus, l'accès rapide au périphérique de Nantes facilite les déplacements en voiture. Ne manquez pas cette opportunité unique d'acquérir un appartement confortable et bien situé à Nantes. Contactez-moi dès maintenant pour organiser une visite ! La presente annonce immobiliere vise 1 lot situé dans une copropriété de 65 lots au total et ne faisant l'objet d'aucune procédure en cours citée à l'article L. 721-1 du code de la construction et de l'habitation. Montant moyen mensuel de charges déclaré par le vendeur : 100.33€ par mois (soit 1204 € annuel). Honoraires d'agence à la charge du vendeur. Information d'affichage énergétique sur ce bien : classe ENERGIE C indice 137 et classe CLIMAT A indice 5. Les informations sur les risques auxquels ce bien est exposé, y compris l'obligation légale de débroussaillement, sont disponibles sur le site Géorisques : http://www.georisques.gouv.fr. La présente annonce immobilière a été rédigée sous la responsabilité éditoriale de M Ludovic Drouet mandataire indépendant en immobilier (sans détention de fonds), agent commercial de la SAS I@D France immatriculé au RSAC de NANTES sous le numéro 378939441, titulaire de la carte de démarchage immobilier pour le compte de la société I@D France SAS.
À proximité
Recherche des commodités à proximité...
Détails de l'annonce
Localisation
Ville
Nantes
Pays
FR
Diagnostics / Énergie
Diagnostic DPE
137
Diagnostic GES
5
Surfaces / Pièces / Composition
Nombre d’étages
2
Étage
2
Chauffage et diagnostics
Diagnostic de performance énergétique (DPE)
a
b
c
d
e
f
g
Indice d'émission de gaz à effet de serre (GES)
a
b
c
d
e
f
g
