Type
Bien immobilierTarif
99 000 €Chambres
4Salles de bain
0Vente Maison de village 5 pièces
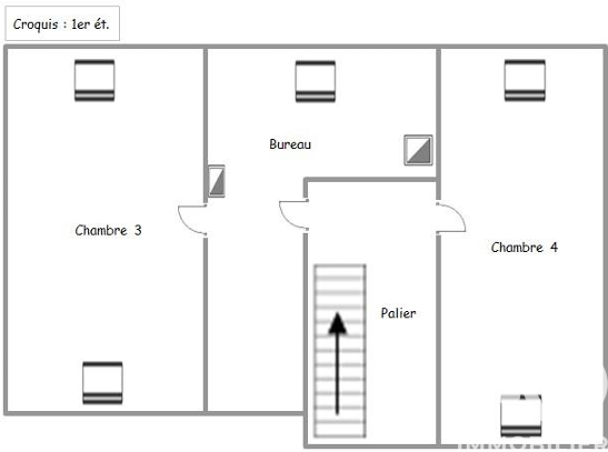
Iad France - Patrice Picart vous propose : MAISON DE VILLAGE DE 98 m² À SAINT-CHINIAN - UN SALON / SALLE À MANGER - CUISINE - 4 CHAMBRES - 1 SALLE D’EAU - WC - TERRASSE TROPÉZIENNE. Située au cOEur du village de Saint-Chinian, réputé pour ses vignobles et son art de vivre méditerranéen, cette maison de caractère offre environ 98 m² habitables répartis sur trois niveaux, avec au dernier étage une agréable terrasse tropézienne. Au rez-de-chausssée, vous découvrirez un espace de vie chaleureux composé d’un salon / salle à manger de 16,55 m², et d’une cuisine fonctionnelle de 13,10 m². Cet ensemble convivial permet de profiter pleinement du quotidien tout en conservant l’authenticité d’une maison de village. Au premier étage, deux chambres lumineuses (14 m² et 13 m²) accueillent confortablement famille ou invités. Une salle d’eau et un WC viennent apporter praticité et confort. Le deuxième étage propose deux chambres supplémentaires (16 m² et 15 m² ), idéales pour compléter la partie nuit ou pour aménager un bureau selon vos besoins. Le dernier niveau réserve une belle surprise avec une terrasse tropézienne de 33 m², véritable espace de détente à ciel ouvert avec la possibilité de faire une cuisine d’été. Ce lieu unique se prête parfaitement aux repas en extérieur, aux soirées d’été ou simplement à des instants de calme, avec une vue dégagée sur les toits du village. LES + TERRASSE TROPÉZIENNE, 4 CHAMBRES, PLACES DE PARKING DEVANT LA MAISON. La maison bénéficie d’un emplacement privilégié, à proximité immédiate des commerces, des écoles et du marché réputé de Saint-Chinian. Vous profitez ainsi d’un cadre de vie agréable et animé, tout en restant à quelques kilomètres de Béziers (30mn ), de Narbonne (40mn ), des plages méditerranéennes (40mn) et de la rivière (2mn ). Cette maison de village combine charme, fonctionnalité et extérieur rare. Elle convient aussi bien comme résidence principale que comme maison de vacances ou investissement locatif. À visiter sans tarder. Ne manquez pas l'opportunité de devenir le propriétaire de cette charmante maison de village à Saint-Chinian. Contactez-nous dès aujourd'hui pour organiser une visite ! Honoraires d'agence à la charge du vendeur. Bien non soumis au DPE. Les informations sur les risques auxquels ce bien est exposé, y compris l'obligation légale de débroussaillement, sont disponibles sur le site Géorisques : http://www.georisques.gouv.fr. La présente annonce immobilière a été rédigée sous la responsabilité éditoriale de M Patrice Picart mandataire indépendant en immobilier (sans détention de fonds), agent commercial de la SAS I@D France immatriculé au RSAC de BEZIERS sous le numéro 488853649, titulaire de la carte de démarchage immobilier pour le compte de la société I@D France SAS.
À proximité
Recherche des commodités à proximité...
Détails de l'annonce
Localisation
Ville
Saint-Chinian
Pays
FR
Surfaces / Pièces / Composition
Nombre d’étages
3
Chauffage et diagnostics
Diagnostic de performance énergétique (DPE)
a
b
c
d
e
f
g
Indice d'émission de gaz à effet de serre (GES)
a
b
c
d
e
f
g
