Type
Bien immobilierTarif
1 695 000 €Chambres
10Salles de bain
0Vente Château 19 pièces
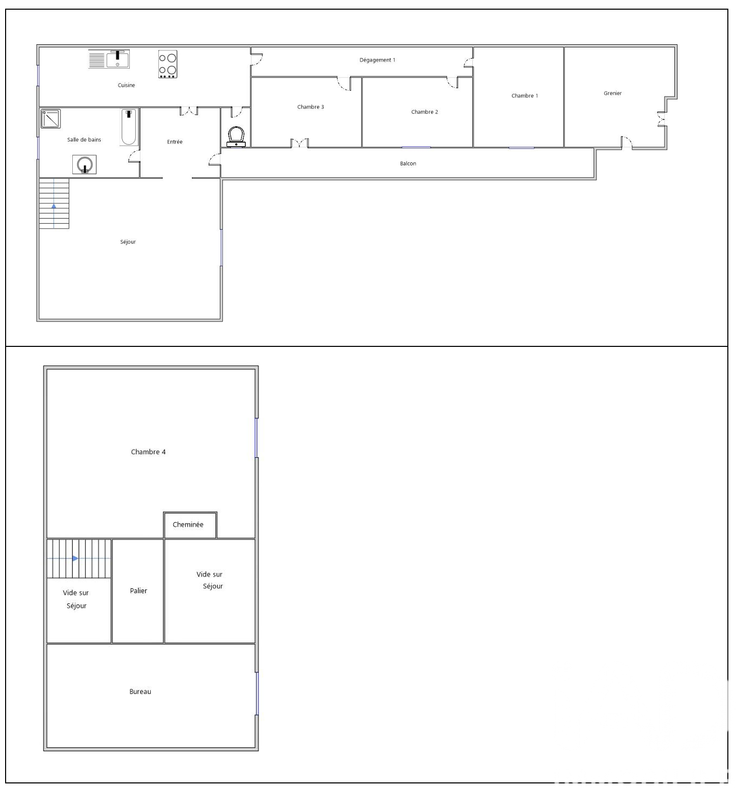
Iad France - Stéphane Thierry vous propose : Propriété d’exception au coeur de Jarnac, inscrite au Monuments Historiques (vous permettant de bénéficier d'avantages fiscaux et successoraux). Bâtit à la fin du XIXe siècle à la demande Baptiste Vert, grand négociant de Cognac, le château, à l’architecture remarquable et à plusieurs facettes, domine le parc qui descend en pente jusqu’à la Charente. Le logis offre 700 m² environ habitables comprenant entre autres une salle de réception, une salle-à-manger, une cuisine, une bibliothèque, un bureau, 8 chambres, 7 salles-de-bains, un jardin d’hiver unique en son genre. Plusieurs pièces à rénover permettent d’augmenter la capacité d’accueil actuelle. Des artistes de renoms ont décoré les intérieurs : Théodore Levigne pour les peintures, Alexandre Charpentier pour les poignées et serrures, Henri Curcier pour les vitraux. Le bien conserve une majorité d’éléments d’origine : plafond à caisson, plafond peint, toiles peintes, stucs, escalier monumental en marbre. Le parc de 2,2 hectares intègre, au pied de la terrasse, de la rocaille percée de grottes et une île privée sur la Charente accessible par un petit pont. Le sous-sol du Château est composé d'un garage de 80 m² environ, d'une chaufferie et de plusieurs espaces aménageables. La propriété vous offre calme et prestige. Le bien est inscrit aux moments historiques. Il vous permet de bénéficier de déductions fiscales de charges liées à la propriété (travaux, frais liés à son ouverture possible à la visite…) ainsi que l’exonération totale des droits de succession et de donation. Honoraires d'agence à la charge du vendeur. Bien non soumis au DPE. Les informations sur les risques auxquels ce bien est exposé, y compris l'obligation légale de débroussaillement, sont disponibles sur le site Géorisques : http://www.georisques.gouv.fr. La présente annonce immobilière a été rédigée sous la responsabilité éditoriale de M Stéphane Thierry mandataire indépendant en immobilier (sans détention de fonds), agent commercial de la SAS I@D France immatriculé au RSAC de ANGOULEME sous le numéro 848653317, titulaire de la carte de démarchage immobilier pour le compte de la société I@D France SAS.
À proximité
Recherche des commodités à proximité...
Détails de l'annonce
Localisation
Ville
Jarnac
Pays
FR
Surfaces / Pièces / Composition
Nombre d’étages
3
Chauffage et diagnostics
Diagnostic de performance énergétique (DPE)
a
b
c
d
e
f
g
Indice d'émission de gaz à effet de serre (GES)
a
b
c
d
e
f
g
