Type
Bien immobilierTarif
299 000 €Chambres
5Salles de bain
0Vente Maison/villa 9 pièces
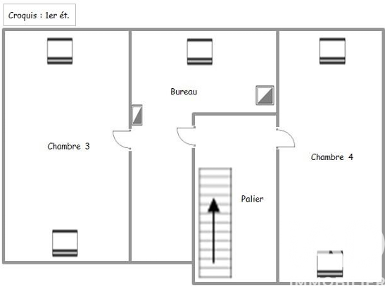
Iad France - Isabelle Cibard vous propose : En exclusivité, à Nieul-sur-l’Autise, petite cité de caractère située entre Fontenay le comte et Niort, 5 min de l'A83,1H de NANTES, 1H de LA ROCHELLE et 4H de PARIS, belle maison familiale de caractère, de 170 m² habitables, avec 5 chambres, piscine, dépendances et terrain arboré clos de murs. Située au calme, dans un environnement privilégié, cette charmante maison offre un cadre de vie idéal pour une famille. Entièrement tournée vers son magnifique jardin clos de murs et soigneusement arboré, elle allie authenticité, confort et beaux volumes. En rez-de-chaussée, vous découvrirez une pièce de vie lumineuse avec plafond cathédrale, poutres apparentes et une superbe cheminée en pierre, offrant une atmosphère chaleureuse. La cuisine ouverte et conviviale s’intègre parfaitement à l’espace jour, favorisant une circulation fluide entre le salon, la salle à manger et les extérieurs. Vous trouverez aussi sur ce niveau une arrière cuisine, 2 chambres, une salle d'eau et un wc, L'étage se compose d'une mezzanine, un bureau, 3 chambres, un dressing et une salle d'eau / wc. À l’extérieur, le terrain de 1608 m² entièrement clos de murs et paysagé révèle de beaux espaces de détente et de réception. La propriété bénéficie de trois terrasses : Une terrasse au bord de la piscine, parfaite pour profiter du soleil et des moments de farniente. Une terrasse à l’ouest, accessible directement depuis le salon, idéale pour les apéritifs au coucher du soleil. Une troisième terrasse, située près de la dépendance, équipée d’un four à pizza pour des repas conviviaux en famille ou entre amis. La dépendance aménagée en salle de jeux, dotée d'une cheminée, constitue un espace supplémentaire très apprécié pour organiser des soirées festives ou créer un lieu dédié aux loisirs. La façade pleine de charme, ses massifs soignés et son superbe jardin arboré font de cette propriété un lieu où il fait bon vivre. Cette propriété est idéale pour accueillir une grande famille ou y faire des chambres d'hôte. Vous recherchez une maison spacieuse, élégante et parfaitement entretenue dans un cadre apaisant à Nieul-sur-l’Autise ? Cette propriété est faite pour vous. Honoraires d'agence à la charge du vendeur. Information d'affichage énergétique sur ce bien : classe ENERGIE C indice 140 et classe CLIMAT A indice 5. Les informations sur les risques auxquels ce bien est exposé, y compris l'obligation légale de débroussaillement, sont disponibles sur le site Géorisques : http://www.georisques.gouv.fr. La présente annonce immobilière a été rédigée sous la responsabilité éditoriale de Mme Isabelle Cibard mandataire indépendant en immobilier (sans détention de fonds), agent commercial de la SAS I@D France immatriculé au RSAC de LA ROCHE SUR YON sous le numéro 837882679, titulaire de la carte de démarchage immobilier pour le compte de la société I@D France SAS.
À proximité
Recherche des commodités à proximité...
Détails de l'annonce
Localisation
Ville
Rives-d'Autise
Pays
FR
Diagnostics / Énergie
Diagnostic DPE
140
Diagnostic GES
5
Surfaces / Pièces / Composition
Nombre d’étages
2
Chauffage et diagnostics
Diagnostic de performance énergétique (DPE)
a
b
c
d
e
f
g
Indice d'émission de gaz à effet de serre (GES)
a
b
c
d
e
f
g
