Type
Bien immobilierTarif
204 000 €Chambres
0Salles de bain
0Vente Appartement 3 pièces
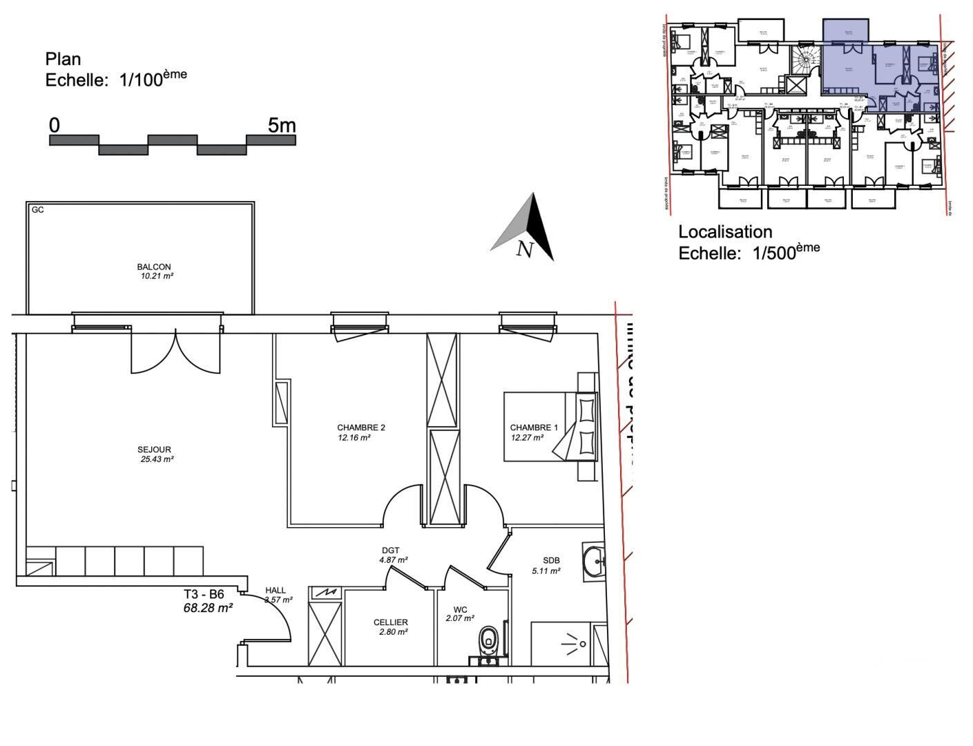
Iad France - Antonio Pracella (06 73 95 56 54) vous propose : VEFA CLOUANGE - T3 NEUF DE 68 m² environ AVEC TERRASSE EN R + 1 Appartement T3 de 68,28 m² environ + un balcon de 10,21 m² environ Craquez pour ce spacieux T3 en VEFA au 1er étage d'une résidence neuve à Clouange. Des volumes généreux et une distribution optimisée pour un confort de vie au quotidien. Le bien : Grand séjour lumineux de plus de 25 m² environ avec cuisine ouverte 2 belles chambres de plus de 12 m² environ Salle de bain de plus de 5 m² environ WC séparé Cellier de 2,80 m² environ Stationnement disponible en option Volets motorisés Ascenseur Isolation Phonique et Thermique Performance énergétique (RE2020, chauffage au sol par pompe à chaleur) Éligible PTZ (Prêt à Taux Zéro) Frais de notaire réduits (3% au lieu de 8%) Idéal pour : Primo-accédants avec PTZ Jeunes familles Frontaliers Luxembourg Contactez-moi pour la notice descriptive et parler de votre projet immobilier. Honoraires d’agence à la charge du vendeur. Bien non soumis au DPE. Les informations sur les risques auxquels ce bien est exposé sont disponibles sur le site Géorisques : www.georisques.gouv.fr. La présente annonce immobilière a été rédigée sous la responsabilité éditoriale de M. Antonio Pracella EI (ID 81602), mandataire indépendant en immobilier (sans détention de fonds), agent commercial de la SAS I@D France immatriculé au RSAC de Thionville sous le numéro 402788640, titulaire de la carte de démarchage immobilier pour le compte de la société I@D France SAS. Retrouvez tous nos biens sur notre site internet. www.iadfrance.fr.
Cette semaine
Cette annonce est récente
À proximité
Recherche des commodités à proximité...
Détails de l'annonce
Localisation
Ville
Clouange
Pays
FR
Surfaces / Pièces / Composition
Nombre d’étages
3
Chauffage et diagnostics
Diagnostic de performance énergétique (DPE)
a
b
c
d
e
f
g
Indice d'émission de gaz à effet de serre (GES)
a
b
c
d
e
f
g
