Type
Bien immobilierTarif
283 550 €Chambres
4Salles de bain
1Maison F5 165 m² Ravine Des Cabris
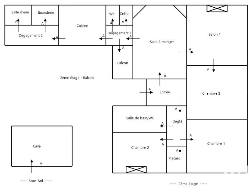
MAXImmo vous propose sur le secteur recherché de la ravine des cabris, cette maison F5, de 165 m², sur une parcelle d'environ 420 m². Ce bien offre un potentiel pour ceux qui souhaitent investir dans un projet de rénovation.
Nichée en fond d'impasse, elle bénéficie d'un cadre calme et paisible, tout en étant à proximité du Leclerc, des écoles et de toutes commodités.
Elle se compose d'une cuisine, d'un grand salon/séjour lumineux, donnant sur une spacieuse terrasse. Elle dispose également de quatre chambres, d'un bureau,d'une salle d'eau et d'un wc séparé.
Bien qu'elle nécessite des travaux de rénovation, son agencement fonctionnel et ses volumes généreux offrent un potentiel pour en faire une maison agréable à vivre et à votre image. Honoraires TTC charge vendeur Mandat n° 12 353
Réseau MAXImmo -
Plus d'informations et consultation de nos tarifs sur www.maximmo.re
Les informations sur les risques auxquels ce bien est exposé sont disponibles sur le site Géorisques : www.georisques.gouv.fr'
Honoraires à la charge du vendeur. Non soumis au DPE. Les informations sur les risques auxquels ce bien est exposé sont disponibles sur le site Géorisques : georisques.gouv.fr.
Votre conseiller MAXImmo : Charlene BARROIS
Agent commercial (Entreprise individuelle)
Cette semaine
Cette annonce est récente
À proximité
Recherche des commodités à proximité...
Détails de l'annonce
Finances / Mandat / Références
Charges
€
Localisation
Ville
Ravine Des Cabris
Pays
France
Surfaces / Pièces / Composition
Surface habitable
165 m²
Nombre de pièces
5
Nombre de chambres
4
Nombre de balcons
Caractéristiques / Équipements
Ascenseur
Digicode
Interphone
Meublé
Cuisine
Type de cuisine
équipée
Chauffage et diagnostics
Diagnostic de performance énergétique (DPE)
a
b
c
d
e
f
g
Indice d'émission de gaz à effet de serre (GES)
a
b
c
d
e
f
g
