Type
Bien immobilierTarif
274 500 €Chambres
0Salles de bain
0Vente Maison/villa 8 pièces
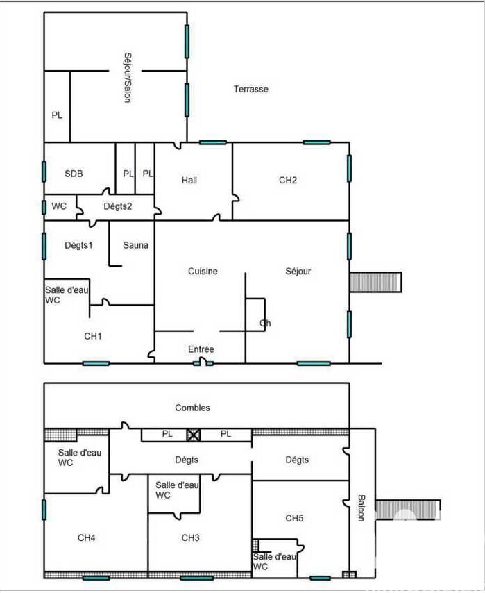
Iad France - Sandra Lacombe vous propose : Auterive - Charmante Maison à Rénover sur belle parcelle de 3700 m² Cette spacieuse maison individuelle offre un énorme potentiel pour une famille désireuse de personnaliser son futur chez-soi. Située à Auterive, à proximité des commodités locales et des écoles, elle est idéalement implantée sur un vaste terrain offrant un cadre de vie paisible et verdoyant. La maison s'étend sur deux étages, avec un total de 8 pièces dont 5 chambres spacieuses, 1 salle de bain, 4 salles d'eau, 3 toilettes et une cuisine. La disposition des pièces permet d'imaginer diverses espaces de vie fonctionnels et accueillants. Cette maison nécessite des travaux de rénovation pour remettre en état ses installations et moderniser son agencement. Cependant, une fois les rénovations terminées, vous pourrez créer un intérieur à votre image et profiter d'un espace de vie confortable et adapté à vos besoins spécifiques. Potentiels multiples : créations de plusieurs appartements, maison familiale. Terrain constructible Investisseurs n'hésitez pas ! Vidéos de l'intérieur à la demande Honoraires d'agence à la charge du vendeur. Bien non soumis au DPE. Les informations sur les risques auxquels ce bien est exposé, y compris l'obligation légale de débroussaillement, sont disponibles sur le site Géorisques : http://www.georisques.gouv.fr. La présente annonce immobilière a été rédigée sous la responsabilité éditoriale de Mme Sandra Lacombe mandataire indépendant en immobilier (sans détention de fonds), agent commercial de la SAS I@D France immatriculé au RSAC de Toulouse sous le numéro 811607464, titulaire de la carte de démarchage immobilier pour le compte de la société I@D France SAS.
À proximité
Recherche des commodités à proximité...
Détails de l'annonce
Localisation
Ville
Auterive
Pays
FR
Chauffage et diagnostics
Diagnostic de performance énergétique (DPE)
a
b
c
d
e
f
g
Indice d'émission de gaz à effet de serre (GES)
a
b
c
d
e
f
g
