Type
Bien immobilierTarif
490 000 €Chambres
0Salles de bain
0Vente Murs commerciaux 265 m²
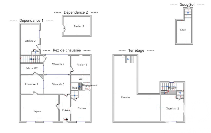
Iad France - Patrice Jubault (06 07 42 04 24) vous propose : Gare Le Mans murs et fonds Bar-Hôtel d'une surface de 265 m² environ, terrasse de 120 m² environ comprenant au RDC : bar (75 m² environ), cuisine, bureau, sanitaires et entrée hôtel séparée. Au 1er : 4 studios avec kitchenette, salle d'eau, WC idem au 2ème étage. Toiture en excellent état, huisseries PVC double vitrage. Beau bâtiment Situation idéale. Prévoir rafraîchissement. Information d'affichage énergétique sur le bien associé à cette annonce : DPE NS indice 0 et GES NS indice 0. La présente annonce immobilière a été rédigée sous la responsabilité éditoriale de M. Patrice Jubault (ID 31850), Agent Commercial mandataire en immobilier immatriculé au Registre Spécial des Agents Commerciaux (RSAC) du Tribunal de Commerce de LE MANS sous le numéro 382085512 Retrouvez tous nos biens sur notre site internet. www.iadfrance.fr.
À proximité
Recherche des commodités à proximité...
Détails de l'annonce
Localisation
Ville
Le Mans
Pays
FR
Surfaces / Pièces / Composition
Nombre d’étages
Chauffage et diagnostics
Diagnostic de performance énergétique (DPE)
a
b
c
d
e
f
g
Indice d'émission de gaz à effet de serre (GES)
a
b
c
d
e
f
g
