Type
Bien immobilierTarif
1 995 000 €Chambres
0Salles de bain
0Vente Local d'activités 191 m²
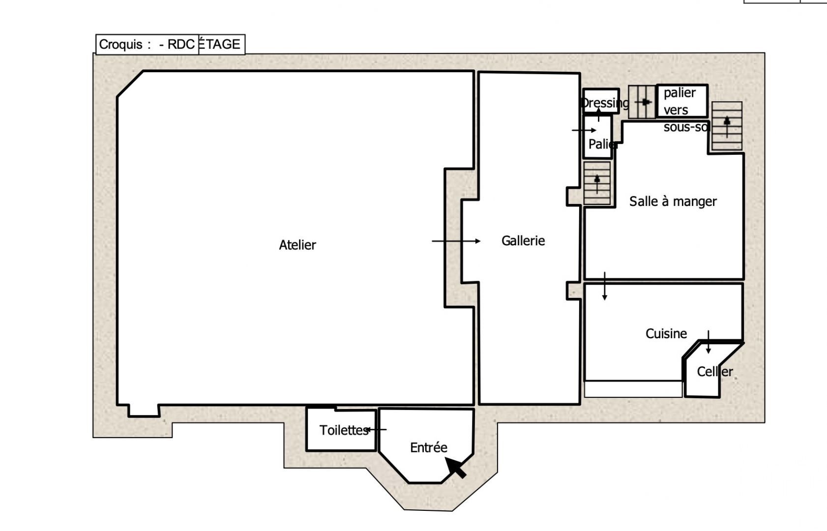
Iad France - Véronique Roche (06 19 79 41 25) vous propose : Un lieu d’exception au cOEur de Neuilly-sur-Seine Nichée à l’abri des regards, cette maison-atelier de 204 m² environ, autrefois occupée par le sculpteur et peintre Charles Walhain, est un véritable écrin architectural, où les volumes et la lumière se conjuguent avec élégance. Située à l’arrière d’un immeuble Art Déco signé Henri Sauvage, elle offre un cadre inspirant et raffiné, idéal pour une adresse professionnelle unique. Dès l’entrée de réception, les lignes élégantes et les matériaux nobles donnent le ton. L’espace principal, véritable scène théâtrale de 105 m² environ, s’élève sous 6 mètres de hauteur sous plafond. Deux immenses verrières laissent filtrer une lumière naturelle spectaculaire, sublimant chaque détail architectural. Une majestueuse cheminée, surplombée d’une sculpture remarquable, capte immédiatement le regard et confère au lieu une atmosphère unique. Quelques marches viennent rythmer la surface et accentuer la profondeur de l’espace. Les alcôves, bordées de ferronneries d’art et de colonnades, ajoutent une touche de raffinement, créant des espaces propices aux échanges ou à la contemplation. L’ensemble compose une harmonie entre volumes monumentaux et recoins intimistes, faisant de cette propriété un lieu à part. L’accès se fait par deux entrées distinctes : une entrée de réception, idéale pour accueillir clients ou visiteurs dans un cadre prestigieux, et une entrée fonctionnelle, garantissant une parfaite discrétion et facilitant l’organisation des lieux. Un lieu à réinventer selon vos ambitions ? Siège social ou cabinet de conseil : Offrez à votre équipe et à vos clients un cadre hors du commun, propice à la créativité et à l’excellence. ? Fondation ou maison d’édition : Un écrin idéal pour des projets culturels et intellectuels d’envergure. ? Showroom ou galerie d’art : Sublimez vos collections dans un décor architectural unique. ? Atelier d’artiste ou studio créatif : Un espace inspirant, baigné de lumière, prêt à accueillir les esprits les plus audacieux. Ce bien allie élégance et fonctionnalité. Sa modularité permet d’envisager une variété d’aménagements, répondant aussi bien aux besoins d’une entreprise innovante qu’à ceux d’une institution culturelle. Son adresse confidentielle, à quelques minutes de Paris, en fait un lieu privilégié pour installer un projet d’exception, alliant discrétion et prestige. Une opportunité rare d’investir un lieu hors du temps. Contactez-moi pour en découvrir tout le potentiel. Information d'affichage énergétique sur le bien associé à cette annonce : classe ENERGIE E indice 278 et classe CLIMAT E indice 61. La présente annonce immobilière a été rédigée sous la responsabilité éditoriale de Mme Véronique Roche (ID 49410), Agent Commercial mandataire en immobilier immatriculé au Registre Spécial des Agents Commerciaux (RSAC) du Tribunal de Commerce de Créteil sous le numéro 908285786 Retrouvez tous nos biens sur notre site internet. www.iadfrance.fr.
À proximité
Recherche des commodités à proximité...
Détails de l'annonce
Localisation
Ville
Neuilly-sur-Seine
Pays
FR
Surfaces / Pièces / Composition
Nombre d’étages
Chauffage et diagnostics
Diagnostic de performance énergétique (DPE)
a
b
c
d
e
f
g
Indice d'émission de gaz à effet de serre (GES)
a
b
c
d
e
f
g
