Trouver...

Language: FR

Devise: EUR

Type
Bien immobilier
Tarif
325 000 €
Chambres
0
Salles de bain
0

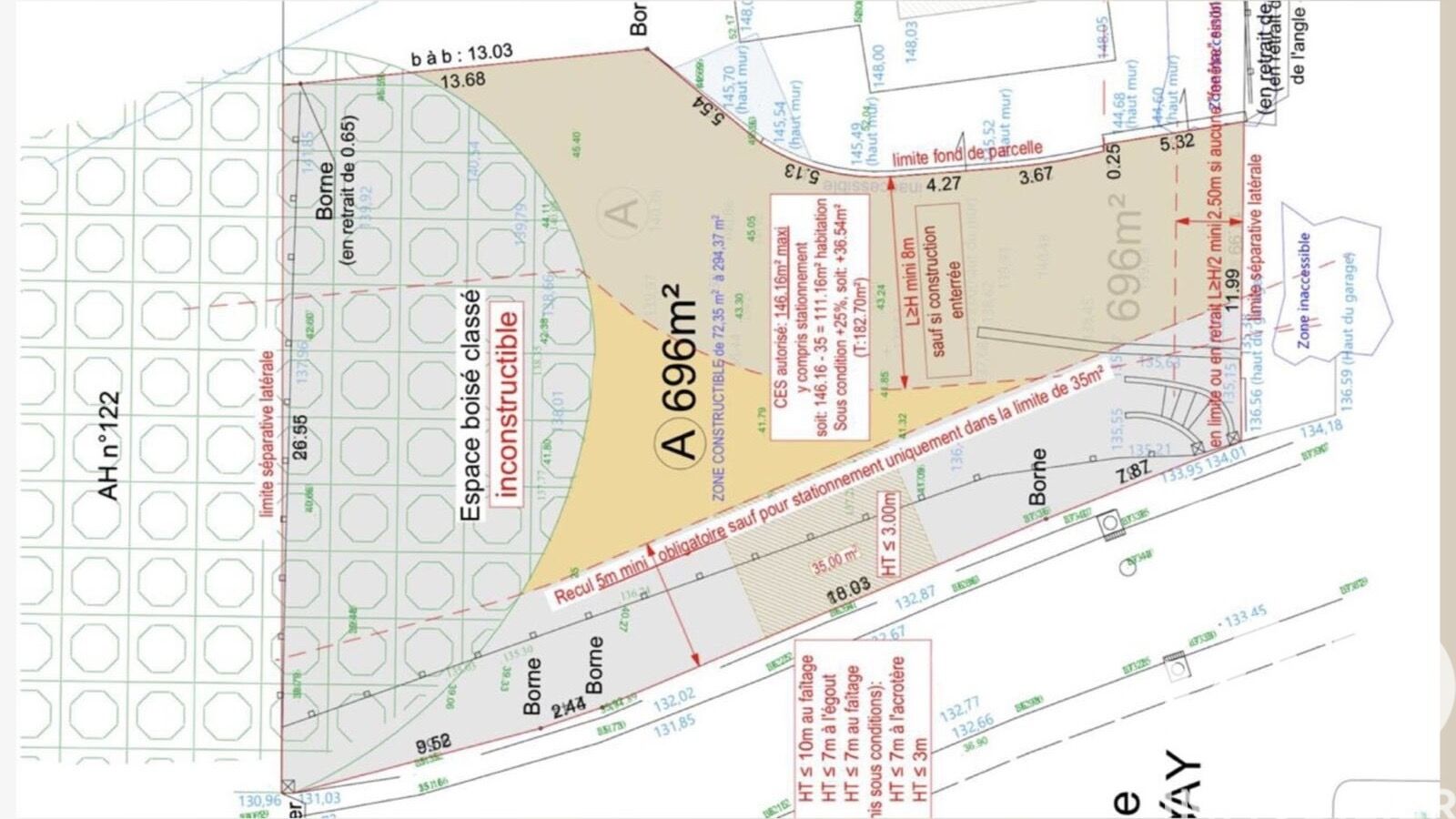
Vente Terrain à bâtir 696 m²

Iad France - Marc Benichou vous propose : Terrain à vendre – 700 m² avec large façade à Orsay Offrant une vue imprenable sur la vallée, ce terrain figure parmi les derniers disponibles dans le secteur. Idéalement situé dans un quartier résidentiel recherché d’Orsay, à la limite de Palaiseau (quartier La Troche), il se trouve à proximité immédiate de la future gare du Grand Paris – ligne 18, ainsi que du RER B, station Palaiseau-Lozère. D’une superficie de 700 m², il bénéficie d’un environnement calme, verdoyant et très prisé. Les commerces, les établissements scolaires (École Polytechnique, lycée international de Palaiseau…) et les transports – notamment la ligne 18 du métro du Grand Paris prévue pour 2026 – sont accessibles à pied, garantissant un cadre de vie aussi pratique qu’agréable. Le PLU (zone UHc) autorise une emprise au sol de 21 %, permettant la réalisation d’une maison d’architecte pouvant dépasser 250 m² habitables. La façade Est s’ouvre sur la rue, tandis que l’Ouest offre une vue dégagée sur la vallée. En pente et partiellement non constructible, le terrain invite à concevoir un projet sur mesure respectant ses caractéristiques naturelles. Un emplacement rare et privilégié, idéal pour concrétiser un projet d’exception aux portes de Paris, au cOEur du plateau de Saclay. Honoraires d'agence à la charge du vendeur. Bien non soumis au DPE. Les informations sur les risques auxquels ce bien est exposé, y compris l'obligation légale de débroussaillement, sont disponibles sur le site Géorisques : http://www.georisques.gouv.fr. La présente annonce immobilière a été rédigée sous la responsabilité éditoriale de M Marc Benichou mandataire indépendant en immobilier (sans détention de fonds), agent commercial de la SAS I@D France immatriculé au RSAC de EVRY sous le numéro 407 546 258, titulaire de la carte de démarchage immobilier pour le compte de la société I@D France SAS.

Détails de l'annonce

Localisation

Ville
Orsay
Pays
FR

Surfaces / Pièces / Composition

Nombre d’étages

Chauffage et diagnostics

Diagnostic de performance énergétique (DPE)
a
b
c
d
e
f
g
Indice d'émission de gaz à effet de serre (GES)
a
b
c
d
e
f
g
Rappelez-moi
Nos partenaires