Type
Bien immobilierTarif
175 000 €Chambres
0Salles de bain
0Vente Immeuble 121 m²
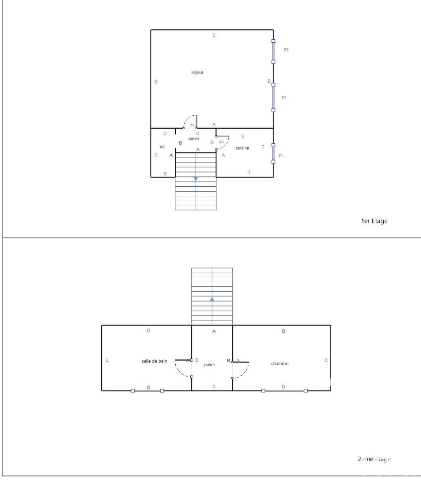
Iad France - Sofyane Tarraf vous propose : - Emplacement idéal pour cet immeuble avec local commercial et duplex au coeur de Creil - Situé à côté de la place Saint Médard, cet immeuble de 121 m² sans charges de copropriété est constitué d'un : * Local commercial de 59 m² avec 3 pièces (2 portes d'accès distinctes), un local technique, un wc et un jardin de 60 m² * Un duplex de 3 pièces de 62,5 m² comprenant un salon / séjour (possibilité de créer une chambre), une cuisine séparée, un wc et à l'étage une chambre et une SdB. Les atouts : * Aucunes charges de copropriété * L'emplacement stratégique au coeur de Creil * La proximité avec les commodités et la gare de CREIL qui dessert Paris Nord en 25min Bien que nécessitant des travaux de rénovation, ce bâtiment est une véritable pépite pour les investisseurs ou les bricoleurs passionnés en quête d'un projet unique. Honoraires d'agence à la charge du vendeur. Information d'affichage énergétique sur ce bien : classe ENERGIE G indice 619 et classe CLIMAT G indice 136. Les informations sur les risques auxquels ce bien est exposé, y compris l'obligation légale de débroussaillement, sont disponibles sur le site Géorisques : http://www.georisques.gouv.fr. La présente annonce immobilière a été rédigée sous la responsabilité éditoriale de M Sofyane Tarraf mandataire indépendant en immobilier (sans détention de fonds), agent commercial de la SAS I@D France immatriculé au RSAC de COMPIEGNE sous le numéro 888786159, titulaire de la carte de démarchage immobilier pour le compte de la société I@D France SAS.
À proximité
Recherche des commodités à proximité...
Détails de l'annonce
Localisation
Ville
Creil
Pays
FR
Diagnostics / Énergie
Diagnostic DPE
619
Diagnostic GES
136
Surfaces / Pièces / Composition
Nombre d’étages
2
Chauffage et diagnostics
Diagnostic de performance énergétique (DPE)
a
b
c
d
e
f
g
Indice d'émission de gaz à effet de serre (GES)
a
b
c
d
e
f
g
