Vente Maison/villa 7 pièces
Type
Bien immobilierTarif
588 000 €Chambres
5Salles de bain
0Vente Maison/villa 7 pièces
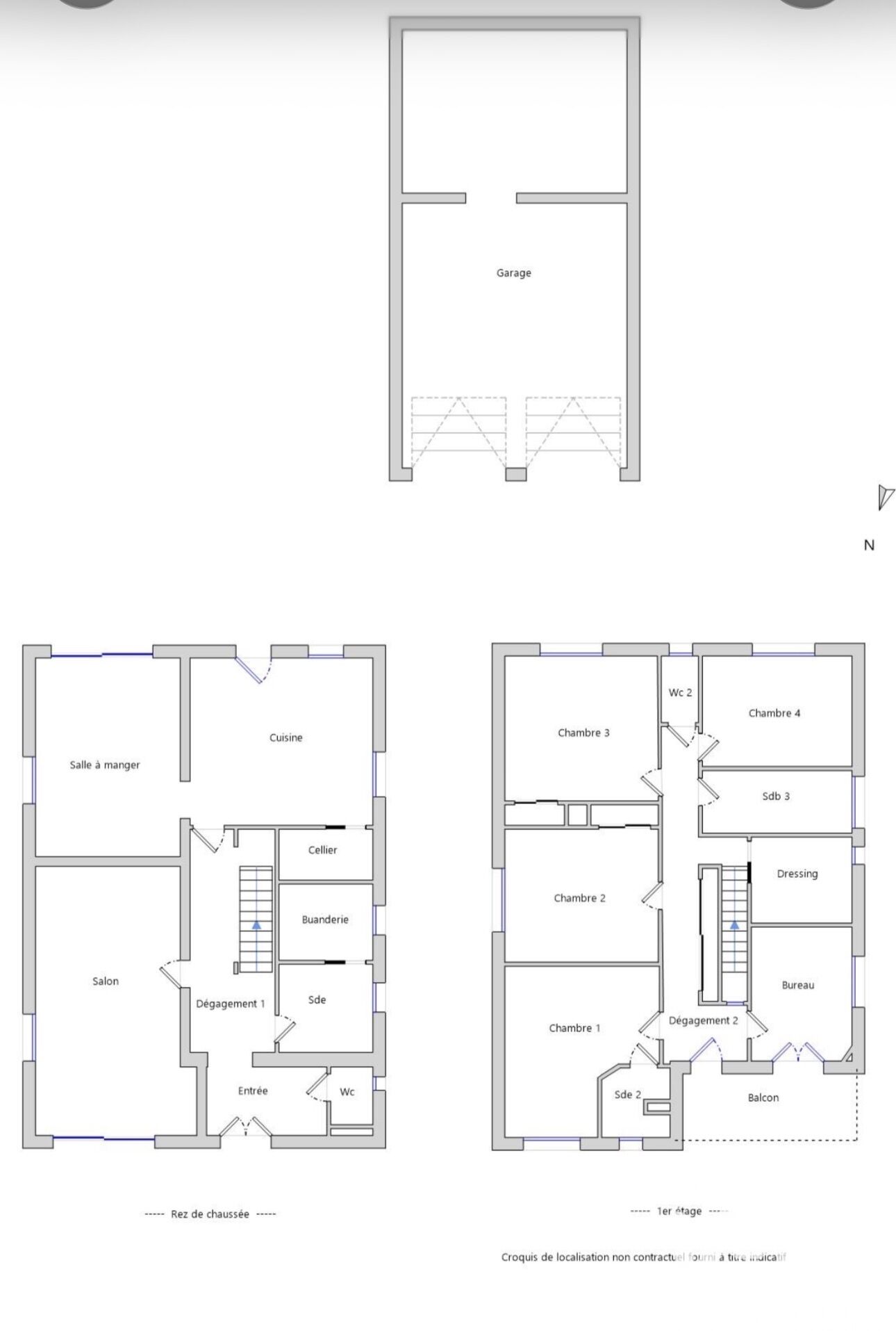
Iad France - Marion Rebiere vous propose : Cestas Gazinet. À 15min à pied de la gare de Cestas. Ramassage scolaire à deux pas. Entre le bassin et Bordeaux. Commerces de proximité. (Une négociation est possible avec les propriétaires.) Belle demeure en pierre de 200 m² RENOVÉE. Elle se compose en rez-de-chaussée : - Une entrée avec un wc, - Une cuisine avec un cellier, - Un salon avec cheminée, -Un séjour lumineux donnant sur terrasse, -Une salle d'eau, -Une buanderie. Une terrasse en bois pour profiter de l'exterieur. À l'étage avec une belle hauteur sous plafond (2,80m), un dégagement mène : - Une salle de bain, - Un wc, - Quatre chambres (15 m²) avec placards dont une suite parentale avec salle d'eau, - Un dressing, - Un bureau ou une chambre (9 m²) - Une terrasse couverte pour profiter de l'extérieur. Le tout sur une parcelle de 1420 m². UN DOUBLE GARAGE pour stationner et une dépendance attenant à l'arrière. Dalle béton réalisée avec électricité et eau pouvant accueillir une cuisine d'été. Evacuations et électricité sont présents pour votre future piscine. De très belles prestations à NE PAS RATER. Honoraires d'agence à la charge du vendeur. Information d'affichage énergétique sur ce bien : classe ENERGIE C indice 104 et classe CLIMAT C indice 19. Les informations sur les risques auxquels ce bien est exposé, y compris l'obligation légale de débroussaillement, sont disponibles sur le site Géorisques : http://www.georisques.gouv.fr. La présente annonce immobilière a été rédigée sous la responsabilité éditoriale de Mme Marion Rebiere mandataire indépendant en immobilier (sans détention de fonds), agent commercial de la SAS I@D France immatriculé au RSAC de BORDEAUX sous le numéro 835023557, titulaire de la carte de démarchage immobilier pour le compte de la société I@D France SAS.
Détails de l'annonce
Localisation
Ville
Cestas
Pays
FR
Diagnostics / Énergie
Diagnostic DPE
104
Diagnostic GES
19
Chauffage et diagnostics
Diagnostic de performance énergétique (DPE)
a
b
c
d
e
f
g
Indice d'émission de gaz à effet de serre (GES)
a
b
c
d
e
f
g
