Type
Bien immobilierTarif
440 000 €Chambres
3Salles de bain
0Vente Appartement 4 pièces
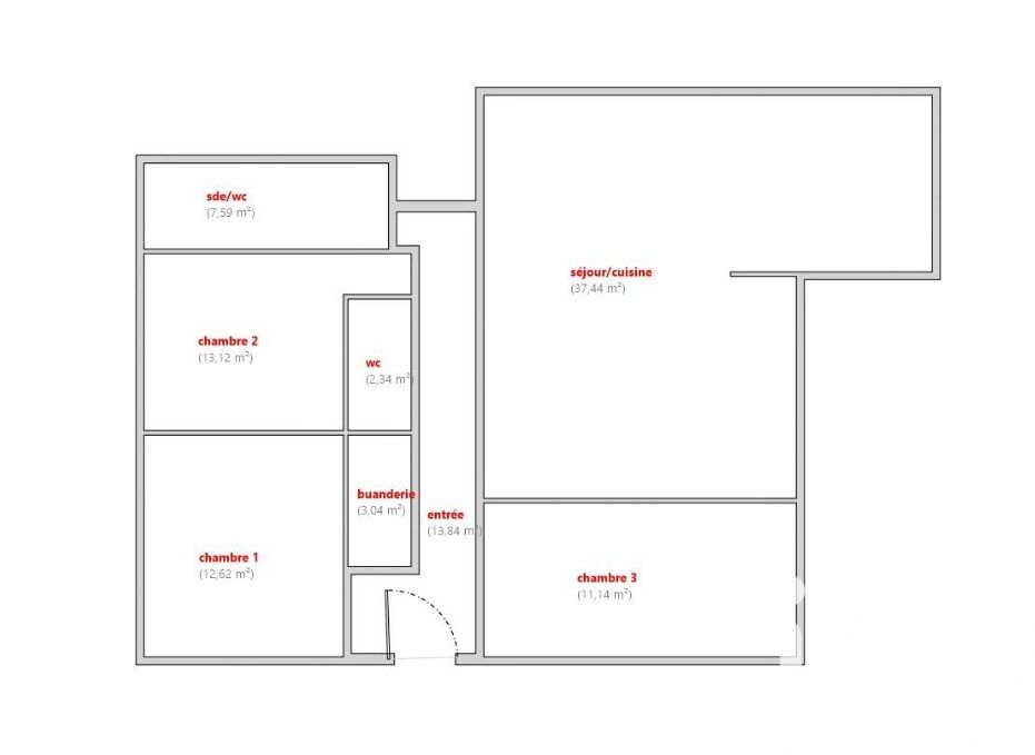
Iad France - Laure Hauquier vous propose : Quartier Casamance - Aubagne Secteur calme et recherché Découvrez ce bas de maison de 114 m², niché sur une parcelle de 250 m², offrant un cadre de vie agréable et apaisant. Ce T4 fonctionnel et lumineux se compose de : • 3 belles chambres, • un espace salon / séjour / cuisine spacieux et baigné de lumière, • une buanderie, • ainsi qu’une salle d’eau moderne. À l’extérieur, vous profiterez d’une grande terrasse exposée plein sud, idéale pour savourer le calme environnant et les belles journées. Une piscine hors-sol et un local technique viennent compléter ce bien. Une opportunité rare à Aubagne, alliant confort, modernité et sérénité. Contactez-moi pour organiser une visite et découvrir ce lieu de vie plein de charme. La presente annonce immobiliere vise 1 lot situé dans une copropriété de 3 lots au total et ne faisant l'objet d'aucune procédure en cours citée à l'article L. 721-1 du code de la construction et de l'habitation. Montant moyen mensuel de charges déclaré par le vendeur : 24.17€ par mois (soit 290 € annuel). Honoraires d'agence à la charge du vendeur. Information d'affichage énergétique sur ce bien : classe ENERGIE C indice 163 et classe CLIMAT A indice 5. Les informations sur les risques auxquels ce bien est exposé, y compris l'obligation légale de débroussaillement, sont disponibles sur le site Géorisques : http://www.georisques.gouv.fr. La présente annonce immobilière a été rédigée sous la responsabilité éditoriale de Mme Laure Hauquier mandataire indépendant en immobilier (sans détention de fonds), agent commercial de la SAS I@D France immatriculé au RSAC de Marseille sous le numéro 978130276, titulaire de la carte de démarchage immobilier pour le compte de la société I@D France SAS.
À proximité
Recherche des commodités à proximité...
Détails de l'annonce
Localisation
Ville
Aubagne
Pays
FR
Diagnostics / Énergie
Diagnostic DPE
163
Diagnostic GES
5
Chauffage et diagnostics
Diagnostic de performance énergétique (DPE)
a
b
c
d
e
f
g
Indice d'émission de gaz à effet de serre (GES)
a
b
c
d
e
f
g
