Trouver...

Language: FR

Devise: EUR

Vente Appartement 4 pièces

Publié le 2 August 2025
Type
Bien immobilier
Tarif
325 000 €
Chambres
3
Salles de bain
0

Vente Appartement 4 pièces

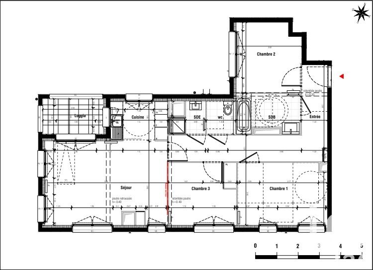
Iad France - Christophe Faelli vous propose : Exposition panoramique et dégagée Découvrez ce magnifique appartement moderne situé au 6ème et dernier étage d'une résidence construite en 2020. Avec ses 84 m² de surface utile, cet appartement saura vous séduire par son design contemporain et ses prestations. Cet appartement dispose de 3 chambres, d'une salle de bain, d'une salle d'eau aménagée en buanderie et d'un WC séparé. Le séjour spacieux agrémenté d'une loggia et son coin cuisine bénéficie d'une exceptionnelle triple exposition SUD-OUEST-NORD offrant un espace de vie baigné de lumière convivial et chaleureux, idéal pour partager les couchers de soleil en famille ou entre amis. Un cellier sur le palier pour une opportunité de stockage supplémentaire et une grande place de stationnement PMR privative en sous sol pour un stationnement sécurisé complète l'espace de vie. La résidence offre un cadre de vie agréable et sécurisé, avec l'accès à des équipements tels que digicode, interphone, fibre optique, ascenseur, accès PMR, grand local vélos. Vous apprécierez le confort du chauffage alimenté par la géothermie. Idéalement situé, cet appartement bénéficie d'une proximité immédiate avec le parc du croissant vert, les commerces locaux, les écoles et les transports en commun, vous offrant un accès facile et rapide à toutes les commodités. Ne manquez pas cette opportunité unique de vivre dans un appartement récent, confortable et fonctionnel à Neuilly-sur-Marne. Contactez moi dès maintenant pour organiser une visite ! La presente annonce immobiliere vise 3 lots situés dans une copropriété de 171 lots au total et ne faisant l'objet d'aucune procédure en cours citée à l'article L. 721-1 du code de la construction et de l'habitation. Montant moyen mensuel de charges déclaré par le vendeur : 336.33€ par mois (soit 4036 € annuel). Honoraires d'agence à la charge du vendeur. Information d'affichage énergétique sur ce bien : classe ENERGIE B indice 94 et classe CLIMAT A indice 4. Les informations sur les risques auxquels ce bien est exposé, y compris l'obligation légale de débroussaillement, sont disponibles sur le site Géorisques : http://www.georisques.gouv.fr. La présente annonce immobilière a été rédigée sous la responsabilité éditoriale de M Christophe Faelli mandataire indépendant en immobilier (sans détention de fonds), agent commercial de la SAS I@D France immatriculé au RSAC de BOBIGNY sous le numéro 894316330, titulaire de la carte de démarchage immobilier pour le compte de la société I@D France SAS.

À proximité

Recherche des commodités à proximité...

Détails de l'annonce

Localisation

Ville
Neuilly-sur-Marne
Pays
FR

Diagnostics / Énergie

Diagnostic DPE
94
Diagnostic GES
4

Surfaces / Pièces / Composition

Nombre d’étages
6
Étage
6

Chauffage et diagnostics

Diagnostic de performance énergétique (DPE)
a
b
c
d
e
f
g
Indice d'émission de gaz à effet de serre (GES)
a
b
c
d
e
f
g
Rappelez-moi