Type
Bien immobilierTarif
171 500 €Chambres
0Salles de bain
0Vente Immeuble 90 m²
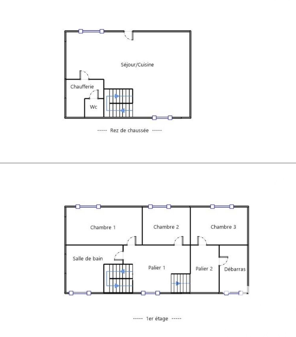
Iad France - Cathy Morenne vous propose : * ASSÉ LE BÉRENGER * 53600 * IMMEUBLE DE RAPPORT DE 2 LOGEMENTS * DPE C ET D * MONOPROPRIÉTÉ * Vous recherchez un placement sécurisé avec revenus immédiats ? Cet immeuble de rapport, rénové en 2005, est prêt à poursuivre son exploitation sans travaux. Logement 1 – 115 m² – 4 chambres Entrée, salon / séjour 22 m², cuisine aménagée 17 m², WC. À l’étage : 2 chambres + salle de bains avec WC. Au second : 2 chambres + salle d’eau avec WC. Un logement familial spacieux et fonctionnel. Logement 2 – 97 m² – 3 chambres + bureau Pièce de vie lumineuse de 40 m² avec baie sur cour et espace cuisine, buanderie, WC. À l’étage : 2 chambres + salle de bains. En demi-niveau : 1 chambre supplémentaire et un bureau. Une configuration recherchée et agréable à vivre. Les atouts de ce bien : Revenus locatifs immédiats : 12 000 € / an Immeuble rénové et conforme pour la location T5 et T4 DPE C et D Cour de stationnement et espace extérieur pour chaque logement Contactez-moi pour obtenir les éléments financiers détaillés et organiser une visite. Honoraires d'agence à la charge du vendeur. Information d'affichage énergétique sur ce bien : classe ENERGIE D indice 167 et classe CLIMAT D indice 33. Les informations sur les risques auxquels ce bien est exposé, y compris l'obligation légale de débroussaillement, sont disponibles sur le site Géorisques : http://www.georisques.gouv.fr. La présente annonce immobilière a été rédigée sous la responsabilité éditoriale de Mme Cathy Morenne mandataire indépendant en immobilier (sans détention de fonds), agent commercial de la SAS I@D France immatriculé au RSAC de LAVAL sous le numéro 844755900, titulaire de la carte de démarchage immobilier pour le compte de la société I@D France SAS.
Ce mois
Cette annonce est récente
À proximité
Recherche des commodités à proximité...
Détails de l'annonce
Localisation
Ville
Assé-le-Bérenger
Pays
FR
Diagnostics / Énergie
Diagnostic DPE
167
Diagnostic GES
33
Chauffage et diagnostics
Diagnostic de performance énergétique (DPE)
a
b
c
d
e
f
g
Indice d'émission de gaz à effet de serre (GES)
a
b
c
d
e
f
g
