Vente Appartement 4 pièces
Type
Bien immobilierTarif
270 350 €Chambres
2Salles de bain
0Vente Appartement 4 pièces
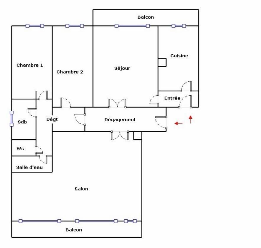
Iad France - Julien Gatti vous propose : * Gare à pied * Meaux Médiathèque * Dernier étage * 2 Balcons * Garage double en sous sol * 2 Caves * Aristide Briand * Venez découvrir cet appartement traversant de 3 / 4 pièces au 5è et dernier étage avec ascenseur offrant une exposition sud sur le séjour avec balcon. Cet appartement de 106 m² dans une résidence sécurisée à Meaux est fait pour vous. Avec, en l'état, ses 2 chambres, sa cuisine séparée idéale pour préparer sereinement ses petits plats, sa salle de bain, sa salle d'eau, et ses WC séparé, cet appartement est parfait pour une famille cherchant de généreux volumes. Situé dans une résidence calme et sécurisée, vous pourrez profiter du calme tout en étant proche des commodités du centre-ville de Meaux. Les écoles, commerces et transports en commun sont facilement accessibles, ce qui rend la vie quotidienne plus pratique. Envie d'en savoir plus ? Ne manquez pas l'opportunité de visiter ce bel appartement, contactez moi. Ce bien est ouvert à l'inter-cabinet pour 100% des professionnels de l'immobilier : rapprochez vous de moi si vous avez un acquéreur potentiel + La presente annonce immobiliere vise 5 lots situés dans une copropriété de 290 lots au total et ne faisant l'objet d'aucune procédure en cours citée à l'article L. 721-1 du code de la construction et de l'habitation. Montant moyen mensuel de charges déclaré par le vendeur : 272€ par mois (soit 3264 € annuel). Honoraires d'agence à la charge du vendeur. Information d'affichage énergétique sur ce bien : classe ENERGIE D indice 198 et classe CLIMAT D indice 39. Les informations sur les risques auxquels ce bien est exposé, y compris l'obligation légale de débroussaillement, sont disponibles sur le site Géorisques : http://www.georisques.gouv.fr. La présente annonce immobilière a été rédigée sous la responsabilité éditoriale de M Julien Gatti mandataire indépendant en immobilier (sans détention de fonds), agent commercial de la SAS I@D France immatriculé au RSAC de MEAUX sous le numéro 843544966, titulaire de la carte de démarchage immobilier pour le compte de la société I@D France SAS.
Détails de l'annonce
Localisation
Ville
Meaux
Pays
FR
Diagnostics / Énergie
Diagnostic DPE
198
Diagnostic GES
39
Surfaces / Pièces / Composition
Nombre d’étages
5
Chauffage et diagnostics
Diagnostic de performance énergétique (DPE)
a
b
c
d
e
f
g
Indice d'émission de gaz à effet de serre (GES)
a
b
c
d
e
f
g
