Type
Bien immobilierTarif
59 000 €Chambres
6Salles de bain
1Maison
Dans un cadre calme et verdoyant, en plein cœur de la campagne, découvrez cet ensemble immobilier situé sur la commune de Saint-Rémy-sur-Durolle, à seulement 3 minutes de la base de loisirs, et à 12 minutes du péage desservant Thiers, Clermont-Ferrand et Lyon.
Idéal pour un investisseur, cet ensemble se compose de trois maisons mitoyennes, chacune disposant de sa propre parcelle de terrain. Ces maisons peuvent être reliées entre elles ou totalement indépendantes, grâce à des accès intérieurs et extérieurs permettant une grande modularité. Le potentiel de ce bien est énorme : il peut se transformer en gîte, en logements locatifs ou même en résidence principale.
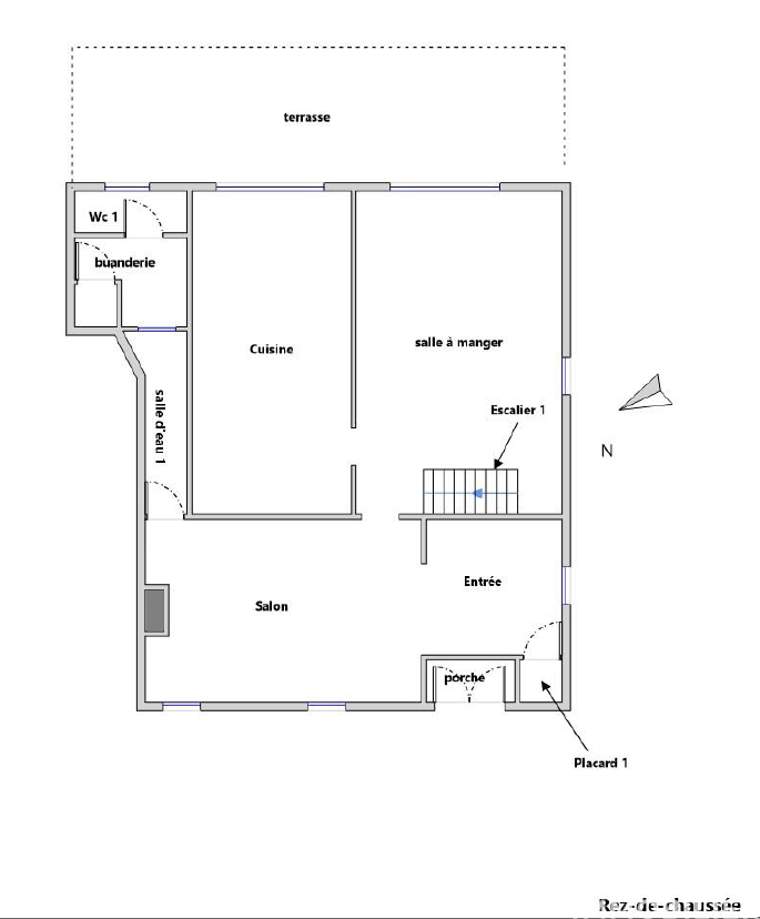
1ère maison (module 1) environ 80m² sur 3 niveaux :
Anciennement utilisée comme maison d'habitation, cette maison à rénover offre :
1 cuisine et sejour de 25m²
4 chambres de près de 10m² chacune
2 points d'eau
1 grenier
1 sous-sol
2ème maison (module 2) :
La maison intermédiaire se compose d'une grande pièce principale et de quatre autres pièces pour près de 80m². Elle dispose également de combles aménageables d'environ 30m², d'un grenier et d'un sous-sol de près de 45m² comprenant une cave, un garage ainsi qu'un espace de stockage. Cette maison offre un gros potentiel d'aménagement ou de rénovation.
3ème maison (module 3) :
Le dernier module comprend, au rez-de-chaussée, un garage et deux pièces supplémentaires de 50m² environ. À l'étage, un grand plateau brut de plus de 80 m², avec une parcelle de terrain attenante.
Ce bien présente un très fort potentiel d'aménagement et de valorisation. Son emplacement calme, tout en étant proche des axes principaux, en fait une opportunité rare sur le marché. À visiter sans tarder !
Pour plus d'informations ou pour organiser une visite, contactez-nous au : 06 75 81 17 95
Email : avial@efficity.com
Les informations sur les risques auxquels ce bien est exposé sont disponibles sur le site Georisque : georisques. gouv. fr
Agnes Vial - EI - est Agent Commercial mandataire en immobilier, immatriculé au Registre Spécial des Agents Commerciaux du Tribunal de Commerce de Clermont-Ferrand sous le n°953692159.
Siège social du mandant : effiCity, 48 avenue de Villiers - 75017 PARIS - Société par Actions Simplifiée, société au capital de 132 373,05 euros, immatriculée au RCS Paris 497 617 746 et titulaire de la Carte professionnelle CPI 7501 2015 000 002 025 - CCI Paris IDF - Caisse de Garantie : GALIAN Assurances 89 rue de la Boétie 75008 Paris
À proximité
Recherche des commodités à proximité...
Détails de l'annonce
Finances / Mandat / Références
Charges
€
Localisation
Ville
Saint Remy Sur Durolle
Pays
France
Surfaces / Pièces / Composition
Surface habitable
200 m²
Nombre de pièces
12
Nombre de chambres
6
Nombre de balcons
Caractéristiques / Équipements
Ascenseur
Digicode
Interphone
Terrasse
Piscine
Gardien
Aménagement handicapés
Diagnostics / Énergie
Diagnostic DPE
G
Diagnostic GES
G
Chauffage / Énergie
Type de chauffage
Type : individuel - Énergie : fuel - Mécanisme : radiateur
Chauffage et diagnostics
Diagnostic de performance énergétique (DPE)
a
b
c
d
e
f
g
Indice d'émission de gaz à effet de serre (GES)
a
b
c
d
e
f
g
