Type
Bien immobilierTarif
236 800 €Chambres
1Salles de bain
0Vente Appartement 2 pièces
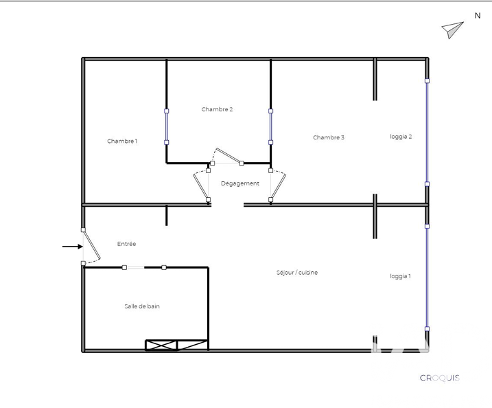
Iad France - Loïse Lagardet vous propose : Vous recherchez un appartement confortable, lumineux et entièrement rénové, dans un environnement calme et bien entretenu ? Découvrez ce faux T4 situé au 4ᵉ et dernier étage avec ascenseur, ce bien rare à Saint-Mandrier, quartier Pin Rolland, est une véritable opportunité ! À l’origine composé de deux studios, l’appartement a été transformé et rénové en un espace de 53 m², pour devenir un 4 pièces, parfaitement fonctionnel et moderne. Il offre : - Une entrée agréable - Une salle d’eau avec WC, avec branchement lave-linge - Une pièce de vie lumineuse, avec sa cuisine ouverte équipée - Une grande chambre de 12 m² - Deux coins nuit de 8 m² et 6 m², pouvant également faire office de bureaux ou espaces polyvalents selon vos besoins Complètent le bien : - 2 caves - 2 places de stationnement non nominatives - Une résidence propre, entretenue et agréable à vivre Ce bien offre une double possibilité très attractive ! Pour une résidence principale : Un couple, ou des retraités, profiteront d’un appartement confortable, au dernier étage avec ascenseur, avec une grande chambre pour eux et deux espaces supplémentaires parfaits pour accueillir enfants, petits-enfants ou amis en séjour. Pour un investissement : Grâce à sa configuration, il est possible d’y installer jusqu’à 8 couchages, offrant ainsi un excellent potentiel locatif saisonnier ou annuel dans un secteur très recherché du littoral. Un appartement modulable, fonctionnel et refait à neuf : parfait pour vivre ou investir ! Envie de découvrir ce bien rare à Saint-Mandrier ? Contactez-moi dès aujourd’hui pour organiser une visite et vous projeter dans votre futur projet ! La presente annonce immobiliere vise 4 lots situés dans une copropriété de 88 lots au total et ne faisant l'objet d'aucune procédure en cours citée à l'article L. 721-1 du code de la construction et de l'habitation. Montant moyen mensuel de charges déclaré par le vendeur : 120€ par mois (soit 1440 € annuel). Honoraires d'agence à la charge du vendeur. Information d'affichage énergétique sur ce bien : classe ENERGIE D indice 238 et classe CLIMAT B indice 7. Les informations sur les risques auxquels ce bien est exposé, y compris l'obligation légale de débroussaillement, sont disponibles sur le site Géorisques : http://www.georisques.gouv.fr. La présente annonce immobilière a été rédigée sous la responsabilité éditoriale de Mme Loïse Lagardet mandataire indépendant en immobilier (sans détention de fonds), agent commercial de la SAS I@D France immatriculé au RSAC de Toulon sous le numéro 905340873, titulaire de la carte de démarchage immobilier pour le compte de la société I@D France SAS.
À proximité
Recherche des commodités à proximité...
Détails de l'annonce
Localisation
Ville
Saint-Mandrier-sur-Mer
Pays
FR
Diagnostics / Énergie
Diagnostic DPE
238
Diagnostic GES
7
Surfaces / Pièces / Composition
Nombre d’étages
4
Chauffage et diagnostics
Diagnostic de performance énergétique (DPE)
a
b
c
d
e
f
g
Indice d'émission de gaz à effet de serre (GES)
a
b
c
d
e
f
g
