Type
Bien immobilierTarif
4 559 € /moisChambres
0Salles de bain
0Location Bureaux 205 m²
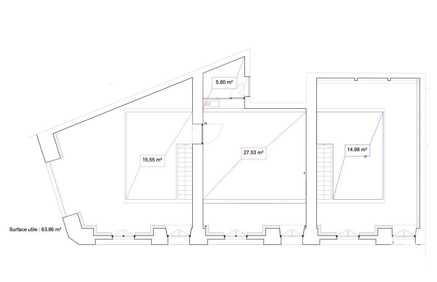
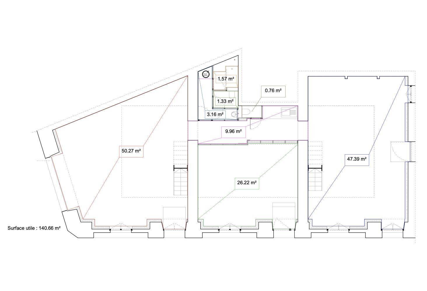
Iad France - Cécilia ROUSSEAU (06 37 75 25 19) vous propose : Au cOEur du quartier PALAIS DE JUSTICE à Toulouse, à proximité immédiate des TRANSPORTS (tram, métro, bus) commodités et commerces, venez découvrir ces bureaux atypiques de 205 m² environ qui donneront une dimension et une identité à votre entreprise. En RDC d'un bâtiment toulousain du 19ème siècle, ces bureaux sont entièrement rénovés par l'agence d'architecture BAST, primée et reconnue pour leur approche 'brutaliste'. Plusieurs open spaces (en RDC et à l'étage) sont proposés dont certains dotés de pièces acoustiques. Une salle de convivialité, des sanitaires avec douche et une place de parking dans la cour intérieure du bâtiment complètent le bien. Le tout est doté d'un système de dalle active béton (plancher et plafond chauffants / rafraichissants) À visiter sans tarder ! Information d'affichage énergétique sur le bien associé à cette annonce : DPE NS indice et GES NS indice. La présente annonce immobilière a été rédigée sous la responsabilité éditoriale de Mme Cécilia ROUSSEAU (ID 34302), Agent Commercial mandataire en immobilier immatriculé au Registre Spécial des Agents Commerciaux (RSAC) du Tribunal de Commerce de TOULOUSE sous le numéro 521610246 Retrouvez tous nos biens sur notre site internet. www.iadfrance.fr.
À proximité
Recherche des commodités à proximité...
Détails de l'annonce
Localisation
Ville
Toulouse
Pays
FR
Finances / Mandat / Références
Honoraires
10 €
Charges
118 €
Surfaces / Pièces / Composition
Nombre d’étages
Chauffage et diagnostics
Diagnostic de performance énergétique (DPE)
a
b
c
d
e
f
g
Indice d'émission de gaz à effet de serre (GES)
a
b
c
d
e
f
g
