Type
Bien immobilierTarif
560 € /moisChambres
0Salles de bain
0Location Bureaux 52 m²
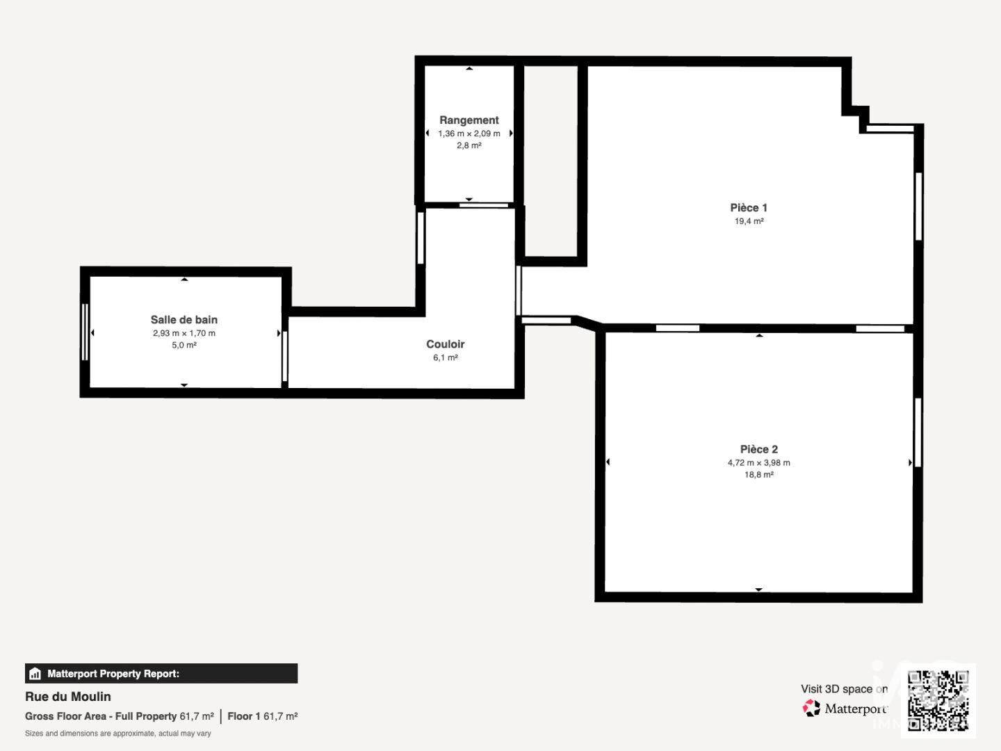
Iad France - Igor Medjean (06 26 82 28 20) vous propose : Bureaux – 52 m² environ – Rue du moulin Le bien se compose de : - Une première pièce de 19 m² environ - Une seconde pièce de 19 m² environ - Une salle de bain avec WC - Un espace de rangement Une visite virtuelle est disponible directement dans l’annonce afin de découvrir le local à distance et vous projeter facilement. Local disponible rapidement. Pour plus d’informations ou organiser une visite, contactez-moi. Information d'affichage énergétique sur le bien associé à cette annonce : DPE NS indice et GES NS indice. La présente annonce immobilière a été rédigée sous la responsabilité éditoriale de M. Igor Medjean (ID 22405), Agent Commercial mandataire en immobilier immatriculé au Registre Spécial des Agents Commerciaux (RSAC) du Tribunal de Commerce de AUXERRE sous le numéro 498189828 Retrouvez tous nos biens sur notre site internet. www.iadfrance.fr.
À proximité
Recherche des commodités à proximité...
Détails de l'annonce
Localisation
Ville
Le Cendre
Pays
FR
Finances / Mandat / Références
Honoraires
550 €
Charges
10 €
Surfaces / Pièces / Composition
Nombre d’étages
Chauffage et diagnostics
Diagnostic de performance énergétique (DPE)
a
b
c
d
e
f
g
Indice d'émission de gaz à effet de serre (GES)
a
b
c
d
e
f
g
