Trouver...

Language: FR

Devise: EUR

CHARTRONS : SUPERBE T3 AVEC EXTERIEUR A VENDRE

Publié le 19 March 2026
Type
Bien immobilier
Tarif
394 000 €
Chambres
2
Salles de bain
1

CHARTRONS : SUPERBE T3 AVEC EXTERIEUR A VENDRE

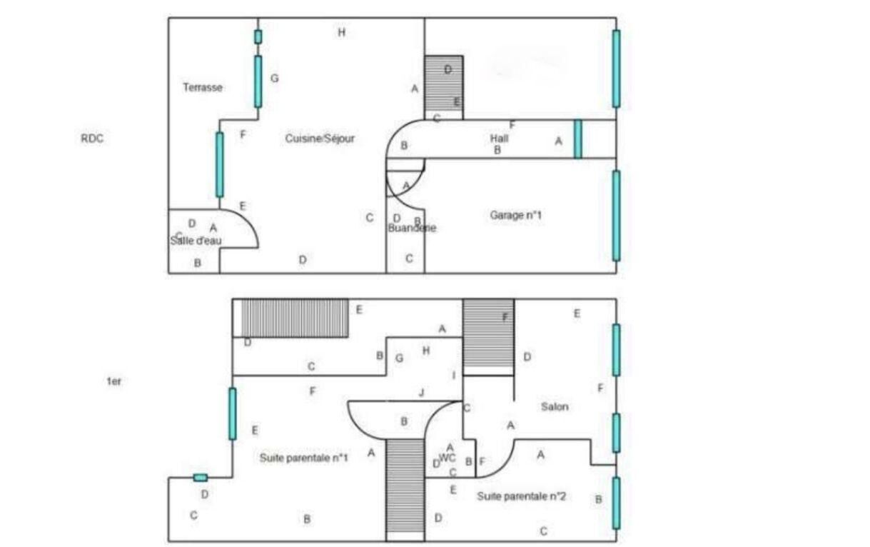
Situé dans le quartier emblématique des Chartrons à Bordeaux, cette résidence offre confort et luminosité. Ce bien propose un beau séjour avec cuisine ouverte, donnant sur un balcon agréable et intimiste. 2 chambres, 1 salle d'eau. Une place de parking vient compléter ce logement. A quelque minute du coeur des Chartrons, ce quartier est riche de commerces, restaurants comme le Mondrian, lieux de vie culturels, infrastructures scolaires, sportives et médicales. Connu pour sa tranquillité, ses belles terrasses et sa beauté architecturale. Proche du centre historique de Bordeaux en transports. Photos non contractuelles, suggestions d'aménagement - Logement BBC, normes RE 2020 et HQE, Logement NF, accessible PMR ELIGIBLE PTZ
Cette semaine Cette annonce est récente

À proximité

Recherche des commodités à proximité...

Détails de l'annonce

Finances / Mandat / Références

Charges

Localisation

Ville
Bordeaux
Pays
France

Surfaces / Pièces / Composition

Surface habitable
62 m²
Nombre de pièces
3
Nombre de chambres
2
Nombre de balcons

Caractéristiques / Équipements

Nombre de parkings

Cuisine

Type de cuisine
ouverte

Chauffage et diagnostics

Diagnostic de performance énergétique (DPE)
a
b
c
d
e
f
g
Indice d'émission de gaz à effet de serre (GES)
a
b
c
d
e
f
g
Rappelez-moi