Type
Bien immobilierTarif
1 360 € /moisChambres
3Salles de bain
0Location Maison/villa 5 pièces
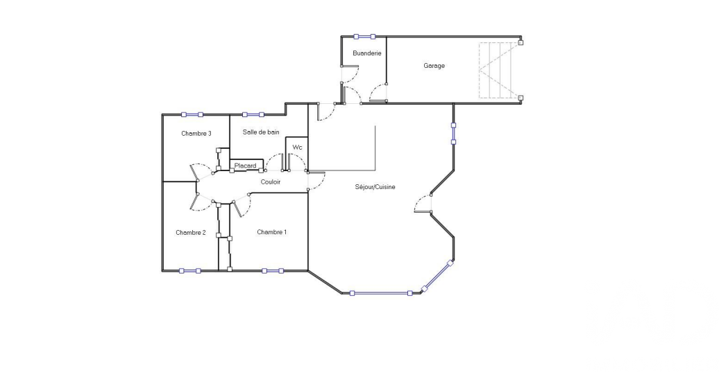
Iad France - Jonathan Cayre vous propose : Découvrez cette magnifique maison récente de plain-pied, alliant luminosité, confort et prestations exclusives, idéale pour une famille en quête de tranquillité. Elle offre dès l’entrée une superbe pièce de vie lumineuse avec de grandes baies vitrées exposées sud-ouest, idéale pour profiter pleinement de la lumière naturelle. La cuisine ouverte avec îlot central, entièrement aménagée, est équipée de nombreux appareils haut de gamme : four, micro-ondes, cave à vin, lave-vaisselle, plaque à induction avec hotte intégrée et réfrigérateur-congélateur américain. Le dégagement dessert trois belles chambres avec placards intégrés, une salle d’eau moderne avec douche à l’italienne, sèche-serviette, grande vasque ainsi qu'un WC suspendu indépendant. Un bureau aménagé et une buanderie avec point d’eau et évacuation pour machines à laver complètent le bien. Depuis l’extérieur, l’accès à la propriété se fait par un portail motorisé. La parcelle de 450 m² environ, entièrement clôturée et sans vis-à vis, offre une terrasse avec store banne et une borne de recharge pour véhicule électrique. Le garage dispose d’une porte automatique pour plus de confort. Le chauffage est assuré par une pompe à chaleur réversible dans le séjour et des radiateurs électriques dans les autres pièces. Toutes les ouvertures sont en aluminium avec volets roulants motorisés. Ce type de bien, rare à la location, s’adresse à une clientèle en quête de qualité, de tranquillité et de prestations haut de gamme. Situé à l’ouest de La Roche-sur-Yon, le quartier de Saint-André d'Ornay séduit par son cadre de vie paisible tout en restant proche du centre-ville. Ce quartier familial et convivial est particulièrement apprécié pour son ambiance résidentielle et offre une grande variété de commodités à proximité : écoles, commerces, supermarchés, ainsi que des services de santé et des associations culturelles, artistiques et sportives… À seulement 2,6 km de la gare SNCF, profitez d’un accès rapide à Nantes en 40 minutes et rejoignez la Grande Plage des Sables d'Olonne en moins d’une demi-heure en voiture. * Dossier complet requis avant visite * (Dépôt de votre candidature via la plateforme sécurisée « ZELOK ») Détails financiers : Loyer : 1360 € / mois hors charges (entretien de la PAC compris) Dépôt de garantie : 1360 € (encaissé et restitué à la fin de la location) Honoraires d’agence : 680 € TTC En sus des honoraires de location, une prestation d’état des lieux d'entrée sera réalisée et facturée au locataire par Homepilot à hauteur de 3 € TTC / m² Information d'affichage énergétique sur ce bien : classe ENERGIE B indice 92 et classe CLIMAT A indice 2. Les informations sur les risques auxquels ce bien est exposé, y compris l'obligation légale de débroussaillement, sont disponibles sur le site Géorisques : http://www.georisques.gouv.fr. La présente annonce immobilière a été rédigée sous la responsabilité éditoriale de M Jonathan Cayre mandataire indépendant en immobilier (sans détention de fonds), agent commercial de la SAS I@D France immatriculé au RSAC de LA-ROCHE-SUR-YON sous le numéro 908057045, titulaire de la carte de démarchage immobilier pour le compte de la société I@D France SAS. Location non meublée. Montant du loyer mensuel charges comprises : 1360.00 euros / mois. Provision mensuelle avec récupération annuelle : 0.00 euros / mois. Zone soumise à encadrement : non. Dépôt de garantie : 1360 euros. Honoraires TTC à la charge du locataire : 680 euros (soit 6€ / m²).
À proximité
Recherche des commodités à proximité...
Détails de l'annonce
Localisation
Ville
La Roche-sur-Yon
Pays
FR
Diagnostics / Énergie
Diagnostic DPE
92
Diagnostic GES
2
Finances / Mandat / Références
Honoraires
680 €
Surfaces / Pièces / Composition
Nombre d’étages
Chauffage et diagnostics
Diagnostic de performance énergétique (DPE)
a
b
c
d
e
f
g
Indice d'émission de gaz à effet de serre (GES)
a
b
c
d
e
f
g
