Type
Bien immobilierTarif
385 000 €Chambres
5Salles de bain
0Vente Maison/villa 8 pièces
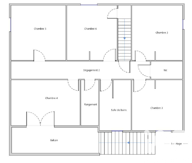
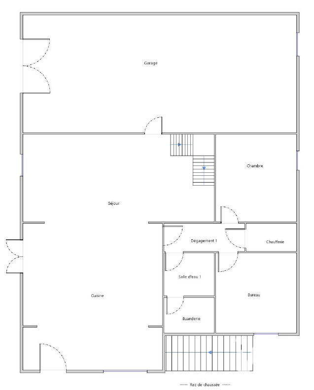
Iad France - Karine Saignant vous propose : Maison beaujolaise familiale Située à 10 minutes à pied du centre d’Arnas, de ses commerces, écoles et commodités, et bénéficiant d’un accès rapide à l’A6, cette maison de style beaujolais construite en 1982 offre un cadre de vie idéal, alliant confort et praticité. Édifiée sur un terrain clos, plat et joliment paysagé de 847 m², la maison développe une surface habitable d’environ 162 m² et séduit par ses volumes et son agencement adapté à la vie de famille. Au rez-de-chaussée, vous découvrirez une belle pièce de vie chaleureuse et conviviale d’environ 53 m² propice aux moments de partage. Ce niveau accueille également un espace parental complet, comprenant une chambre, un bureau, une salle d’eau, un WC ainsi qu’un coin buanderie, offrant confort et fonctionnalité au quotidien. À l’étage, l’espace nuit se compose de quatre chambres, d’un bureau, d’une salle de bains familiale équipée d’une baignoire, d’une douche et de deux vasques, ainsi que d’un WC indépendant. La maison est très bien entretenue et dispose : double vitrage, climatisation dans le séjour, chaudière récente, ainsi qu’un garage permettant le stationnement d’un véhicule avec espace de stockage et coin atelier. Une maison familiale agréable et soignée, idéalement située, à découvrir sans tarder. Honoraires d'agence à la charge du vendeur. Information d'affichage énergétique sur ce bien : classe ENERGIE D indice 158 et classe CLIMAT D indice 33. Les informations sur les risques auxquels ce bien est exposé, y compris l'obligation légale de débroussaillement, sont disponibles sur le site Géorisques : http://www.georisques.gouv.fr. La présente annonce immobilière a été rédigée sous la responsabilité éditoriale de Mme Karine Saignant mandataire indépendant en immobilier (sans détention de fonds), agent commercial de la SAS I@D France immatriculé au RSAC de VILLEFRANCHE TARARE sous le numéro 930200837, titulaire de la carte de démarchage immobilier pour le compte de la société I@D France SAS.
Cette semaine
Cette annonce est récente
À proximité
Recherche des commodités à proximité...
Détails de l'annonce
Localisation
Ville
Arnas
Pays
FR
Diagnostics / Énergie
Diagnostic DPE
158
Diagnostic GES
33
Surfaces / Pièces / Composition
Nombre d’étages
2
Chauffage et diagnostics
Diagnostic de performance énergétique (DPE)
a
b
c
d
e
f
g
Indice d'émission de gaz à effet de serre (GES)
a
b
c
d
e
f
g
