Type
Bien immobilierTarif
173 000 €Chambres
2Salles de bain
0Vente Appartement 3 pièces
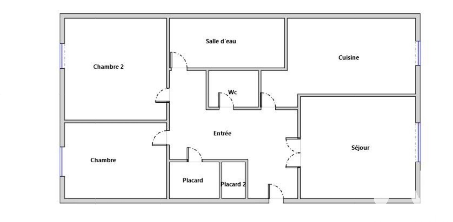
Iad France - Charlotte Prevost vous propose : Situé place de l'ermitage à Saint-Denis, venez découvrir ce spacieux T3 avec cave et parking boxé, à seulement 15 min du métro St Denis Université et 6min des Tramway T5 & T8 à pied, et bien sûr tous les conforts de proximité dans un rayon de moins de 10min à pied (santé, sport, commerce, parcs, restauration). Cet appartement vous offre une distribution en étoile : Entrée avec rangement, distribuant à droite un lumineux séjour de 17 m², en face une cuisine tout en longueur offrant un espace dinatoire (pouvant être ouvert sur le séjour), puis à gauche un cellier, 2 chambres, une salle de douche et un WC. Plein de potentielles avec sa distribution indéniablement cohérente et les travaux de rénovation énergétique qui débuterons 3ème trimestre 2026 (déjà voté et payé). La presente annonce immobiliere vise 3 lots situés dans une copropriété de 309 lots au total et ne faisant l'objet d'aucune procédure en cours citée à l'article L. 721-1 du code de la construction et de l'habitation. Montant moyen mensuel de charges déclaré par le vendeur : 310€ par mois (soit 3720 € annuel). Honoraires d'agence à la charge du vendeur. Information d'affichage énergétique sur ce bien : classe ENERGIE C indice 114 et classe CLIMAT C indice 15. Les informations sur les risques auxquels ce bien est exposé, y compris l'obligation légale de débroussaillement, sont disponibles sur le site Géorisques : http://www.georisques.gouv.fr. La présente annonce immobilière a été rédigée sous la responsabilité éditoriale de Mme Charlotte Prevost mandataire indépendant en immobilier (sans détention de fonds), agent commercial de la SAS I@D France immatriculé au RSAC de BOBIGNY sous le numéro 800139974, titulaire de la carte de démarchage immobilier pour le compte de la société I@D France SAS.
À proximité
Recherche des commodités à proximité...
Détails de l'annonce
Localisation
Ville
Saint-Denis
Pays
FR
Diagnostics / Énergie
Diagnostic DPE
114
Diagnostic GES
15
Surfaces / Pièces / Composition
Nombre d’étages
18
Étage
6
Chauffage et diagnostics
Diagnostic de performance énergétique (DPE)
a
b
c
d
e
f
g
Indice d'émission de gaz à effet de serre (GES)
a
b
c
d
e
f
g
