Type
Bien immobilierTarif
162 752 €Chambres
5Salles de bain
0Maison 7 pièces 94 m2
Maison neuve à construire IRIS_5CH_94_V1
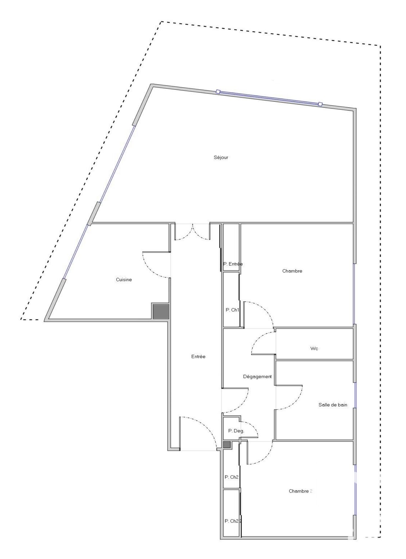
BELLE MAISON DE 5 CHAMBRES
Cette maison de 5 chambres ou 4 chambres + bureau offre une distribution idéale à une vie de famille en respectant un cout de construction optimisé. Elle est pleine d'atouts grâce à sa belle pièce de vie traversante et lumineuse, sa chambre parentale dissociée des autres pièces de nuit et son garage à vélos intégré pour des m² de rangements supplémentaires à un cout minimisé. Son plus : elle est ajustable à vos besoins avec ses options salle d'eau parentale et/ou WC supplémentaire. Ce plan a été pensé pour faciliter l'accès à la propriété avec un budget maîtrisé.
• Lumineuse avec cuisine ouverte donnant sur son jardin.
• Beaux volumes et distribution optimisée des pièces pour votre confort de vie.
• Aménagements et équipements de haut niveau : volets roulants motorisés et connectés, système de chauffage par pompe à chaleur, domotique, carrelage grand format.
ET SI VOUS FAISIEZ CONSTRUIRE AVEC MAISONS ALYSIA ?
Testez notre configurateur en ligne et chiffrez instantanément votre projet personnalisé, téléchargeable.
• Gratuit, rapide et sans engagement.
• + de 250 modèles de maisons personnalisables.
• Calculettes en ligne pour identifier votre budget et évaluer votre future mensualité.
Rendez-vous sur notre site maisons-alysia(.com) pour concrétiser votre rêve.
Contactez-nous au O5 54 69 OO 58 pour finaliser votre projet !
Coût du terrain inclus dans cette offre.
Hors peintures et faïence, revêtements de sol des chambres.
Hors assurance dommages-ouvrage, frais de notaire et frais d'adaptation du terrain éventuels.
Cette offre est proposée en collaboration avec notre partenaire foncier selon disponibilités.
Contact : au 05 54 69 00 58 .
Cette semaine
Cette annonce est récente
À proximité
Recherche des commodités à proximité...
Détails de l'annonce
Finances / Mandat / Références
Charges
€
Localisation
Ville
St Maxire
Pays
France
Surfaces / Pièces / Composition
Surface habitable
94 m²
Nombre de pièces
7
Nombre de chambres
5
Caractéristiques / Équipements
Ascenseur
Digicode
Interphone
Diagnostics / Énergie
Diagnostic DPE
A
Diagnostic GES
A
Chauffage et diagnostics
Diagnostic de performance énergétique (DPE)
a
b
c
d
e
f
g
Indice d'émission de gaz à effet de serre (GES)
a
b
c
d
e
f
g
