Type
Bien immobilierTarif
680 000 €Chambres
4Salles de bain
1Maison
29170 FOUESNANT – 7 PIÈCES – 4 CHAMBRES – 137 m² – PLAIN-PIED – LUMINEUX – CALME – MAISON CONTEMPORAINE – TERRAIN 780 m²
effiCity, l'agence qui estime votre bien en ligne, vous propose cette élégante maison contemporaine construite en 2021, idéalement située dans un quartier résidentiel prisé de Beg Meil, à seulement 1,5 km des plages (5 minutes à vélo).
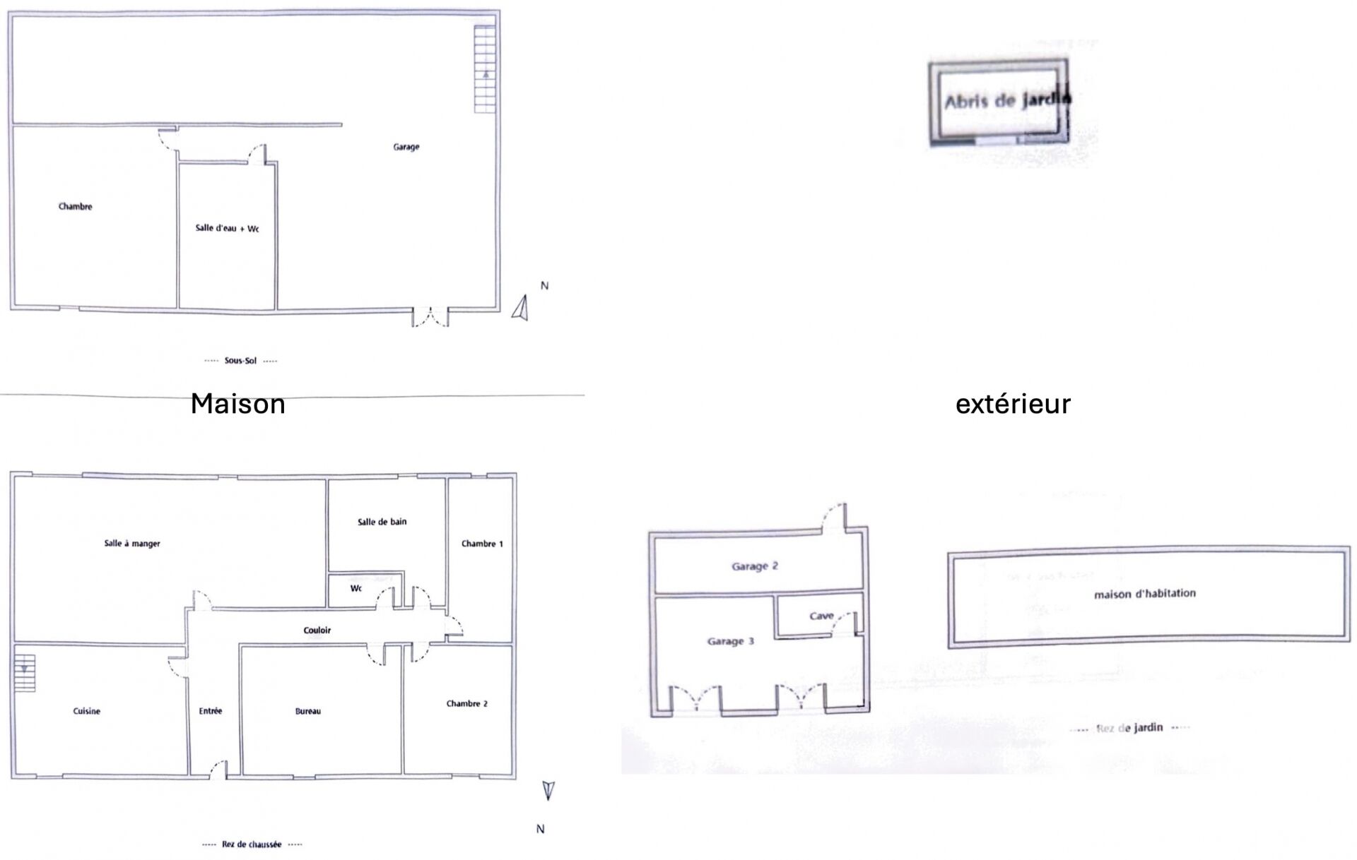
Entièrement de plain-pied, cette propriété de 137 m² séduit par sa luminosité (exposition sud et ouest), son agencement fonctionnel et ses prestations soignées. Dès l'entrée, un patio intérieur apporte une touche d'originalité et de sérénité, tout en inondant l'espace de lumière naturelle.
L'entrée mène à une vaste pièce à vivre de 50 m² avec cuisine ouverte signée Stosa, pensée pour un confort optimal grâce à un électroménager de qualité, intégré à hauteur. Le salon et la cuisine offrent une vue dégagée sur le jardin.
Une première aile dessert un espace buanderie, un WC indépendant, trois chambres d'environ 11 m² chacune, ainsi qu'une salle de bains avec double vasques, douche et WC. La seconde partie accueille une suite parentale de 24 m² avec dressing et salle d'eau privative.
Un abri de jardin de 21 m² vient compléter ce bien, idéal pour le stockage.
Construite sur vide sanitaire accessible, la maison s'élève sur un terrain piscinable de 780 m².
Contactez-moi dès maintenant pour organiser une visite au 06 50 51 37 37
Les informations sur les risques auxquels ce bien est exposé sont disponibles sur le site Georisque : georisques. gouv. fr
Aude Pichon - EI - est Agent Commercial mandataire en immobilier, immatriculé au Registre Spécial des Agents Commerciaux du Tribunal de Commerce de Quimper sous le n°918597683.
Siège social du mandant : effiCity, 48 avenue de Villiers - 75017 PARIS - Société par Actions Simplifiée, société au capital de 132 373,05 euros, immatriculée au RCS Paris 497 617 746 et titulaire de la Carte professionnelle CPI 7501 2015 000 002 025 - CCI Paris IDF - Caisse de Garantie : GALIAN Assurances 89 rue de la Boétie 75008 Paris
À proximité
Recherche des commodités à proximité...
Détails de l'annonce
Finances / Mandat / Références
Charges
€
Localisation
Ville
Fouesnant
Pays
France
Surfaces / Pièces / Composition
Surface habitable
137 m²
Nombre de pièces
7
Nombre de chambres
4
Nombre de balcons
Caractéristiques / Équipements
Ascenseur
Digicode
Interphone
Piscine
Cave
Gardien
Diagnostics / Énergie
Diagnostic DPE
A
Diagnostic GES
A
Orientations
Orientation (simple)
sud
Chauffage et diagnostics
Diagnostic de performance énergétique (DPE)
a
b
c
d
e
f
g
Indice d'émission de gaz à effet de serre (GES)
a
b
c
d
e
f
g
