Type
Bien immobilierTarif
184 500 €Chambres
1Salles de bain
1Appartement
EXCLUSIVITÉ un bien à GISORS (27140)
Appartement T2 avec balcon – Résidence contemporaine au cœur de Gisors
Au centre de Gisors, charmante commune dynamique à seulement 1h de Paris en train, cette nouvelle résidence s'implante sur un axe stratégique, à proximité immédiate de la gare, des écoles, commerces, infrastructures sportives et espaces verts, offrant ainsi un cadre de vie parfaitement équilibré entre praticité urbaine et sérénité.
Le quartier bénéficie d'une animation régulière grâce aux marchés hebdomadaires sur les places des Carmélites et de la Mairie, à quelques pas de la résidence. À moins d'un kilomètre, les richesses patrimoniales de Gisors – son château, ses jardins fleuris, les berges de l'Epte, ou encore son église classée – offrent un décor de vie authentique et apaisant.
Une résidence à l'architecture élégante et aux prestations soignées
Pensée pour conjuguer esthétique, confort et durabilité, la résidence met en valeur une architecture moderne et des finitions soignées. Les appartements bénéficient de prestations haut de gamme :
• Cuisines aménagées pour une fonctionnalité optimale
• Parquets chaleureux pour une ambiance cosy
• Volets roulants motorisés
• Touches colorées sur les murs pour créer une identité unique à chaque espace
Un 2 pièces lumineux avec balcon – Livraison prévue mars 2026
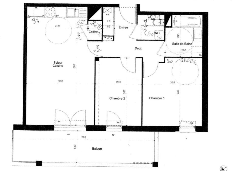
Situé au premier étage, ce bel appartement T2 d'environ 46 m² se compose de :
• Un espace de vie lumineux de 25,93 m² avec salon/séjour et cuisine ouverte
• Une chambre confortable de 11,54 m²
• Une salle de bains spacieuse avec WC de 8,17 m²
Le tout prolongé par un agréable balcon de 6,36 m², exposé ouest, idéal pour savourer les fins de journée ensoleillées.
Un emplacement de parking en sous-sol complète ce bien.
Un investissement judicieux ou un pied-à-terre de qualité
Idéal pour résidence secondaire ou placement locatif dans une ville à la demande soutenue, ce bien allie localisation stratégique, confort moderne et environnement de vie privilégié.
Livraison mars 2026
Prix HAI : 184 500 €
Honoraires d'agence de 6 % TTC de la valeur vénale à la charge de l'acquéreur (11 070 € TTC), soit un bouquet net vendeur de 173 430 €.
Les informations sur les risques auxquels ce bien est exposé sont disponibles sur le site Georisque : georisques. gouv. fr
Pierre Joyaux - EI - est Agent Commercial mandataire en immobilier, immatriculé au Registre Spécial des Agents Commerciaux du Tribunal de Commerce de Saintes sous le n°929563831.
Siège social du mandant : effiCity, 48 avenue de Villiers - 75017 PARIS - Société par Actions Simplifiée, société au capital de 132 373,05 euros, immatriculée au RCS Paris 497 617 746 et titulaire de la Carte professionnelle CPI 7501 2015 000 002 025 - CCI Paris IDF - Caisse de Garantie : GALIAN Assurances 89 rue de la Boétie 75008 Paris
Ce mois
Cette annonce est récente
À proximité
Recherche des commodités à proximité...
Détails de l'annonce
Finances / Mandat / Références
Charges
€
Localisation
Ville
Gisors
Pays
France
Surfaces / Pièces / Composition
Surface habitable
45.64 m²
Nombre de pièces
2
Nombre de balcons
Caractéristiques / Équipements
Digicode
Interphone
Terrasse
Piscine
Cave
Gardien
Diagnostics / Énergie
Diagnostic DPE
A
Diagnostic GES
A
Chauffage et diagnostics
Diagnostic de performance énergétique (DPE)
a
b
c
d
e
f
g
Indice d'émission de gaz à effet de serre (GES)
a
b
c
d
e
f
g
