Maison familiale individuelle 5 pièces | Rouen Vallon Suisse | 150 m²
Publié le 23 January 2026
Type
Bien immobilierTarif
350 000 €Chambres
3Salles de bain
2Maison familiale individuelle 5 pièces | Rouen Vallon Suisse | 150 m²
Vous êtes à la recherche d'une maison située à ROUEN (76000 ) spacieuse aux volumes généreux dans un secteur calme et privilégié ?
Ne cherchez plus, ce bien est fait pour vous !
Nous avons le plaisir de vous présenter cette maison à en très état général d'une surface d'environ 150 m², située au Vallon Suisse. Elle se trouve à quelques minutes en transport du centre-ville et bénéficie d'un environnement très préservé et calme.
Cette maison avec une vue parfaitement dégagée de type 5 pièces avec son terrasse de 50 m² ensoleillée, sans vis-à-vis, son jardin arboré avec dépendance aménageable de 19 mé, et son garage est l'opportunité parfaite pour une vie confortable à proximité de toutes les commodités. Idéal quand on souhaite vivre en ville tout en profitant d'un espace extérieur. Ecoles et des transports en commun (TEOR T2 T3) sont aussi à proximité.
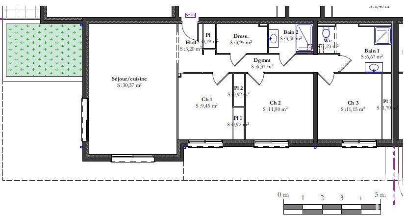
Sa disposition :
Au RDC:
• Une entrée
• Une chambre de 10 m²
• Une grande chambre de 23 m² avec dressing
• Deux salles de douche
• Une chambre de 16 m²
• Un WC indépendant
• Un accès au garage
Au niveau -1:
• Un salon séjour ouvert sur la cuisine de 30 m²
• Une grande cuisine de 19 m²
• Un cellier
• Un WC
• Un dégagement
• Un local chaufferie
• Une Buanderie
• Une cave
Au Rez-de-Jardin :
• Une dépendance de : 19 m² aménageable
• Un jardin
Atouts de ce bien:
Surface habitable: 150 m² | | Terrasse de 50 m² avec vue dégagée | Garage | Menuiseries double vitrage | Très bon état général | Dispose de volumes généreux | Secteur très recherché | Poêle à bois | Chauffage individuel gaz chaudière de 2022 | DPE D | Terrain 454 m² |
Taxe foncière : 1514 euros
« Les informations sur les risques auxquels ce bien est exposé sont disponibles sur le site Géorisques : www.georisques. gouv.fr »
Pour plus d'informations, visiter ou faire estimer votre bien immobilier, contactez Mathilde COUSTHAM au 06.02.13.17.16. Accompagnatrice de projet inscrite au RSAC de ROUEN 902 120 872.
Les informations sur les risques auxquels ce bien est exposé sont disponibles sur le site www.georisques.gouv.fr
À proximité
Recherche des commodités à proximité...
Détails de l'annonce
Finances / Mandat / Références
Charges
€
Localisation
Ville
Rouen
Pays
France
Surfaces / Pièces / Composition
Surface habitable
150 m²
Nombre d’étages
2
Nombre de pièces
5
Nombre de chambres
3
Nombre de salles de bain
2
Nombre de balcons
Caractéristiques / Équipements
Ascenseur
Digicode
Interphone
Nombre de parkings
Diagnostics / Énergie
Diagnostic DPE
D
Diagnostic GES
D
Chauffage / Énergie
Type de chauffage
Type : individuel - Énergie : gaz
Cuisine
Type de cuisine
ouverte
Chauffage et diagnostics
Diagnostic de performance énergétique (DPE)
a
b
c
d
e
f
g
Indice d'émission de gaz à effet de serre (GES)
a
b
c
d
e
f
g
