Type
Bien immobilierTarif
535 000 €Chambres
3Salles de bain
0Vente Maison/villa 5 pièces
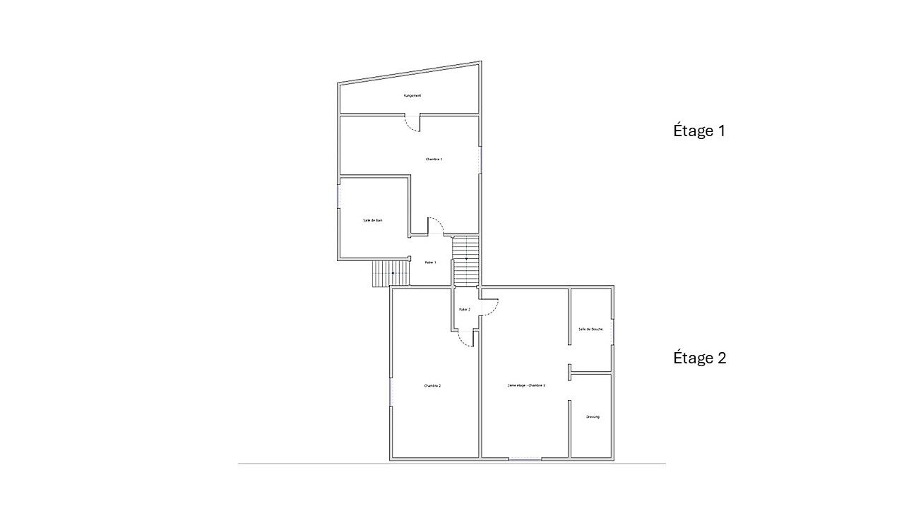
Iad France - Aurélie Montaut vous propose : Louveciennes - Maison offrant 3 chambres, avec terrasse, proche gare. Gare à 6 minutes à pied, Mairie à 8 min. à pied. Une belle opportunité s'offre à vous avec cette maison d'une surface totale au sol de 125 m². Elle offre un cadre de vie idéal pour une famille grâce à ses 3 chambres - dont une parentale - et son agréable terrasse sans vis-à-vis bien exposée. En entrant dans la maison, vous découvrirez sur la gauche une cuisine équipée, accompagnée d'un cellier, très pratique pour le rangement. À droite, l'espace 'salle à manger' est prolongé par un grand salon surélevé de quelques marches. Un WC à l'entrée complète cet étage. Sur les deux étages supérieurs, on découvre les 3 chambres à coucher avec des espaces au sol confortables. Au 1er : salle de bains avec wc et chambre. Au 2ème : chambre 2 et 3 avec sa salle d'eau et son dressing. Cette maison bénéficie d'une exposition sud - ouest, vous offrant une luminosité naturelle tout au long de la journée. Bon état général. Parking gratuit dans la rue. Possibilité de louer une place dans un immeuble adjacent. N'hésitez pas à me contacter pour échanger sur votre projet et organiser une visite ! Honoraires d'agence à la charge du vendeur. Information d'affichage énergétique sur ce bien : classe ENERGIE D indice 204 et classe CLIMAT B indice 8. Les informations sur les risques auxquels ce bien est exposé, y compris l'obligation légale de débroussaillement, sont disponibles sur le site Géorisques : http://www.georisques.gouv.fr. La présente annonce immobilière a été rédigée sous la responsabilité éditoriale de Mme Aurélie Montaut mandataire indépendant en immobilier (sans détention de fonds), agent commercial de la SAS I@D France immatriculé au RSAC de NANTERRE sous le numéro 913570578, titulaire de la carte de démarchage immobilier pour le compte de la société I@D France SAS.
À proximité
Recherche des commodités à proximité...
Détails de l'annonce
Localisation
Ville
Louveciennes
Pays
FR
Diagnostics / Énergie
Diagnostic DPE
204
Diagnostic GES
8
Surfaces / Pièces / Composition
Nombre d’étages
3
Chauffage et diagnostics
Diagnostic de performance énergétique (DPE)
a
b
c
d
e
f
g
Indice d'émission de gaz à effet de serre (GES)
a
b
c
d
e
f
g
