Type
Bien immobilierTarif
215 000 €Chambres
1Salles de bain
0Vente Appartement 2 pièces
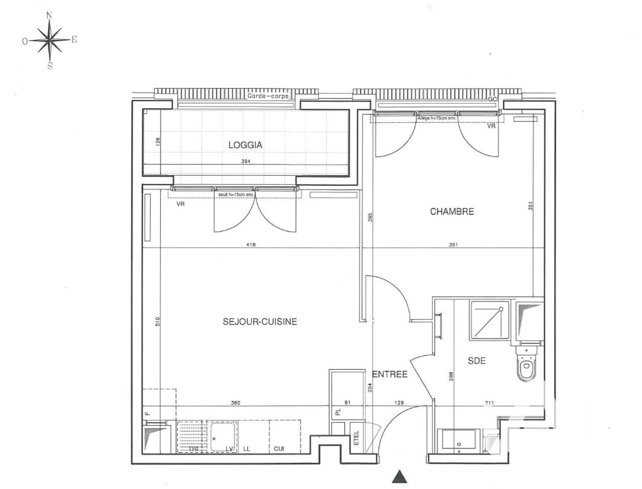
Iad France - Xianghuang Chen vous propose : Bel opportunité à saisir Au pied du métro Ligne 5 'Bobigny-Pablo Picasso' Un joli appartement récent dans un immeuble de 2025, ce F2 de 41.61 m² situé au 5ème étage avec deux ascenseurs. Il est composé d'une entrée avec placard, cuisine ouverte sur le séjour, une chambre, salle d'eau avec WC, une loggia de 4.70 m². Proche de toutes commodités et des écoles de moins de 10 minutes. Les prestations sont de grande qualité avec des équipements de confort tels que la fibre optique, deux ascenseurs, un accès pour les personnes à mobilité réduite ainsi que des équipements de sécurité comme un digicode et un visiophone. Le chauffage est assuré par un système de chauffage urbain alimenté par géothermie, garantissant un confort optimal et des économies d'énergie. Possibilité de louer une place de parking à proximité à 35€ / mois uniquement dédiée aux résidents. Possibilité de visiter 7j / 7j, uniquement sur rendez-vous. La presente annonce immobiliere vise 1 lot situé dans une copropriété de 83 lots au total et ne faisant l'objet d'aucune procédure en cours citée à l'article L. 721-1 du code de la construction et de l'habitation. Montant moyen mensuel de charges déclaré par le vendeur : 151.79€ par mois (soit 1821.52 € annuel). Honoraires d'agence à la charge du vendeur. Information d'affichage énergétique sur ce bien : classe ENERGIE C indice 72 et classe CLIMAT C indice 14. Les informations sur les risques auxquels ce bien est exposé, y compris l'obligation légale de débroussaillement, sont disponibles sur le site Géorisques : http://www.georisques.gouv.fr. La présente annonce immobilière a été rédigée sous la responsabilité éditoriale de M Xianghuang Chen mandataire indépendant en immobilier (sans détention de fonds), agent commercial de la SAS I@D France immatriculé au RSAC de BOBIGNY sous le numéro 819195835, titulaire de la carte de démarchage immobilier pour le compte de la société I@D France SAS.
À proximité
Recherche des commodités à proximité...
Détails de l'annonce
Localisation
Ville
Bobigny
Pays
FR
Diagnostics / Énergie
Diagnostic DPE
72
Diagnostic GES
14
Surfaces / Pièces / Composition
Nombre d’étages
9
Étage
5
Chauffage et diagnostics
Diagnostic de performance énergétique (DPE)
a
b
c
d
e
f
g
Indice d'émission de gaz à effet de serre (GES)
a
b
c
d
e
f
g
