Type
Bien immobilierTarif
147 000 €Chambres
2Salles de bain
0Vente Appartement 3 pièces
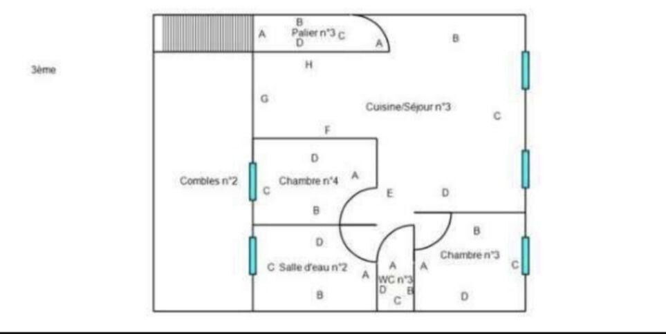
Iad France - Alex Bourgeois (07 85 19 90 20) vous propose : À Thézan-les-Béziers, dans un immeuble de trois étages, composé de trois appartement. Idéalement situé en plein centre du village. Au troisième et dernier étage, vous trouverez ce jolie appartement 3 pièces d’une surface de 63 m² Il offre une grande pièce de vie lumineuse et climatisée avec cuisine ouverte totalement aménagée et équipée, deux chambres avec rangements, une salle d’eau et des WC indépendants. Entièrement rénové, il bénéficie de la climatisation réversible, volet roulant électrique sur l'ensemble des pièces ainsi que la fibre optique. Pour une visite ou toute information complémentaire, je vous laisse le soin de me contacter. Honoraires d’agence à la charge du vendeur. Information d'affichage énergétique sur ce bien : classe ENERGIE B indice 96 et classe CLIMAT A indice 2. Les informations sur les risques auxquels ce bien est exposé sont disponibles sur le site Géorisques : www.georisques.gouv.fr. La présente annonce immobilière a été rédigée sous la responsabilité éditoriale de M. Alex Bourgeois EI (ID 67581), mandataire indépendant en immobilier (sans détention de fonds), agent commercial de la SAS I@D France immatriculé au RSAC de BEZIERS sous le numéro 911580603, titulaire de la carte de démarchage immobilier pour le compte de la société I@D France SAS. Le présent bien est commercialisé dans le cadre d'une délégation de mandat. Retrouvez tous nos biens sur notre site internet. www.iadfrance.fr.
Cette semaine
Cette annonce est récente
À proximité
Recherche des commodités à proximité...
Détails de l'annonce
Localisation
Ville
Thézan Lès Béziers
Pays
FR
Diagnostics / Énergie
Diagnostic DPE
96
Diagnostic GES
2
Surfaces / Pièces / Composition
Nombre d’étages
Chauffage et diagnostics
Diagnostic de performance énergétique (DPE)
a
b
c
d
e
f
g
Indice d'émission de gaz à effet de serre (GES)
a
b
c
d
e
f
g
